建物完成しました! 「中田」駅利用 新築一戸建て(4) エコジョーズ

物件種別

新築一戸建て

価格

4,699万円

所在地

横浜市泉区 中田西4丁目

交通

ブルーライン「中田」駅 徒歩 19 分

ブルーライン「立場」駅 バス停「高砂苑」まで 徒歩 2 分 バス利用 3分

土地面積

100.77㎡

建物面積

117.77㎡

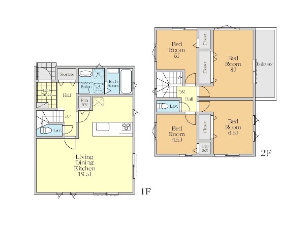
間取り

1LDK+2S

前回情報更新日 2026.03.12 | 次回情報更新予定日 2026.03.26

1 | 2

この物件のココがオススメ!

BL「中田」駅利用。日差しが取り込みやすい2階リビングは開放感のある吹抜け。大物の収納に便利なロフト付。省エネ性能に優れたガス給湯器ecoジョーズ他設備充実。

お気軽にどうぞ!

お気に入りに追加済み

所在地マップ

申し訳ありません。
所在地マップは会員限定です。

無料の会員登録(簡単1分)で
すぐに物件をご覧になれます。

無料会員登録はこちら

間取り

お気軽にどうぞ!

お気に入りに追加済み

ローンシミュレーション

頭金・金利の場合

この物件の月々のお支払額

106,601

ボーナス時(年2回)お支払額

150,000

年収に対する返済比率

- %

※会員登録し、詳細情報を記入されますと、全ての物件で自動的に金額が表示され、大変便利です。

※まだ会員登録をされていない方は、下記チェック欄をご記入ください。

※上記計算は物件価格 4,699万円+諸経費 8%込みの金額による結果となります。

※返済金額はあくまでも目安です。

お客様の条件からシミュレーションするには?

会員登録してローン情報を入力しておくと全ての物件に対してローンシミュレーションを表示できます。

お気軽にどうぞ!

お気に入りに追加済み

詳細情報

この一戸建てを見ている人におすすめの物件

お気軽にどうぞ!

お気に入りに追加済み

loading...