値下げしました!今週末内覧会開催中!「瀬谷」駅徒歩15分 中古一戸建て オール電化 全居室6帖以上

物件種別

中古一戸建て

価格

4,680万円

所在地

横浜市瀬谷区 橋戸3丁目

交通

相模鉄道線「瀬谷」駅 徒歩 15 分

土地面積

125.21㎡

建物面積

99.78㎡

間取り

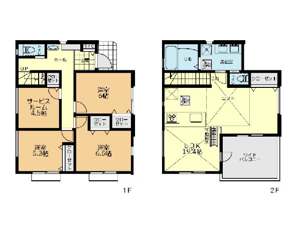
4LDK

前回情報更新日 2025.11.27 | 次回情報更新予定日 2025.12.11

この物件のココがオススメ!

相鉄線「瀬谷」駅徒歩15分。角地に付き開放感あり。オール電化住宅。全居室6帖以上のゆとりの間取り。会話が弾む対面キッチン。床暖房、食洗機他、設備充実。\n

お気軽にどうぞ!

お気に入りに追加済み

所在地マップ

申し訳ありません。
所在地マップは会員限定です。

無料の会員登録(簡単1分)で
すぐに物件をご覧になれます。

無料会員登録はこちら

間取り

お気軽にどうぞ!

お気に入りに追加済み

ローンシミュレーション

頭金・金利の場合

この物件の月々のお支払額

106,082

ボーナス時(年2回)お支払額

150,000

年収に対する返済比率

- %

※会員登録し、詳細情報を記入されますと、全ての物件で自動的に金額が表示され、大変便利です。

※まだ会員登録をされていない方は、下記チェック欄をご記入ください。

※上記計算は物件価格 4,680万円+諸経費 8%込みの金額による結果となります。

※返済金額はあくまでも目安です。

お客様の条件からシミュレーションするには?

会員登録してローン情報を入力しておくと全ての物件に対してローンシミュレーションを表示できます。

お気軽にどうぞ!

お気に入りに追加済み

詳細情報

この一戸建てを見ている人におすすめの物件

お気軽にどうぞ!

お気に入りに追加済み

loading...