物件種別
新築一戸建て
価格
4,680万円
所在地
横浜市旭区 南希望が丘
交通
相模鉄道線「希望ヶ丘」駅 徒歩 15 分
いずみ野線「南万騎が原」駅 徒歩 17 分
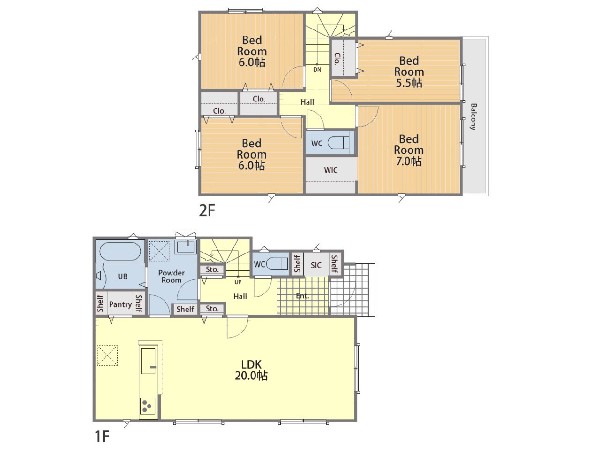
土地面積
100.20㎡
建物面積
88.60㎡
間取り
2LDK+2S
前回情報更新日 2025.10.09 | 次回情報更新予定日 2025.10.23
この物件のココがオススメ!
相鉄線「希望ケ丘」駅から徒歩15分。LDKは、ご家族との会話が弾む対面キッチン。省エネ性能に優れたガス給湯器ecoジョーズ・浴室乾燥機・ペアガラス他設備充実。
お気軽にどうぞ!
お気に入りに追加済み
お気軽にどうぞ!
お気に入りに追加済み
この物件の月々のお支払額
ボーナス時(年2回)お支払額
年収に対する返済比率
※会員登録し、詳細情報を記入されますと、全ての物件で自動的に金額が表示され、大変便利です。
※まだ会員登録をされていない方は、下記チェック欄をご記入ください。
※上記計算は物件価格 4,680万円+諸経費 8%込みの金額による結果となります。
※返済金額はあくまでも目安です。
会員登録してローン情報を入力しておくと全ての物件に対してローンシミュレーションを表示できます。
会員未登録のお客様
会員登録をして会員情報にシミュレーション条件が未登録のお客様
マイページから会員登録なしでシミュレーションするお客様
スーパー
周辺環境:そうてつローゼン希望が丘店(そうてつローゼン希望が丘店まで1000m)(1000m)
スーパー
周辺環境:ライフ希望が丘店(ライフ希望が丘店まで1500m)(1500m)
公園
周辺環境:善部町第四公園(善部町第四公園まで500m)(500m)
幼稚園・保育園
周辺環境:三輪幼稚園(三輪幼稚園まで550m)(550m)
幼稚園・保育園
周辺環境:のぞみ保育園(のぞみ保育園まで1000m)(1000m)
小学校
周辺環境:横浜市立善部小学校(横浜市立善部小学校まで550m)(550m)
中学校
周辺環境:横浜市立南希望が丘中学校(横浜市立南希望が丘中学校まで1200m)(1200m)
公園
周辺環境:善部町第五公園(善部町第五公園まで700m)(700m)
病院
周辺環境:新中川病院(新中川病院まで600m)(600m)
お気軽にどうぞ!
お気に入りに追加済み
学区
善部小学校
南希望が丘中学校
用途地域
第一種低層住居専用
地目
宅地
建ぺい率
50%
容積率
100%
駐車場
有り カースペース
接道
南東 4.0m
権利
所有権
私道面積
有 1.33m²
セットバック
無し
建物構造
木造
建物階数
2階
築年月
2025/09
入居日
2025/10
建築確認番号
第KSI25-3810-50119号
都市計画
市街化区域
取引態様
仲介
物件番号
47511-2
設備
都市ガス、公営水道、公共下水、吹き抜け、駐車場1台、高台に立地、区画整理地内、緑豊かな住宅地、閑静な住宅地、都市近郊、南側道路面す、総合病院徒歩10分以内、小学校徒歩10分以内、公園5分以内、コンビニ5分以内、ウォークインクローゼット、対面キッチン、都市ガス、システムキッチン、ガス3口、対面キッチン、浄水器、I型キッチン、ユニットバス、追い焚き、浴室乾燥機、ウォシュレット、トイレ2ヶ所、浴室1坪以上、浴室に窓、暖房便座、浴室暖房、バルコニー、南面バルコニー、2階建、LDK15畳以上、省エネ給湯器、採光3面、南向き、全室フローリング、リビング階段、クローゼット、ウォークインクローゼット、収納、床下収納、下駄箱、全居室収納、シャンプドレッサー付き、庭、フラット35Sに対応、モニタ付きインターフォン、全居室複層ガラスか複層サッシ、通風良好、陽当り良好、24時間換気システム、建物10年保証
特記事項
崖下につき建築制限 崖上につき建築制限 不整形地 宅地造成工事規制区域 高度地区 準防火地域 特別用途制限地域 日影制限 敷地面積最低限度 建物高さ10m以下 建物建築・再建築の際、深基礎、基礎杭、擁壁の補修・再構築、外壁後退等の対策が必要となる場合有。建物建築・再建築の際、防護壁の設置、高基礎、外壁後退等の対策が必要となる場合有。 建築基準法第22条による区域 崖下につき建築制限:有/崖上につき建築制限:有/不整形地:有/宅地造成工事規制区域:有/高度地区:有/準防火地域:有/特別用途制限地域:有/日影制限:有/敷地面積最低限度:有/高さ限度:有/建物建築・再建築の際、深基礎、基礎杭、擁壁の補修・再構築、外壁後退等の対策が必要となる場合有。建物建築・再建築の際、防護壁の設置、高基礎、外壁後退等の対策が必要となる場合有。 建築基準法第22条による区域
備考
相鉄線「希望ケ丘」駅から徒歩15分。LDKは、ご家族との会話が弾む対面キッチン。省エネ性能に優れたガス給湯器ecoジョーズ・浴室乾燥機・ペアガラス他設備充実。
お気軽にどうぞ!
お気に入りに追加済み
loading...