今週末内覧会開催中!「三ツ境」駅利用 中古一戸建て R7.12月リフォーム完成予定

物件種別

中古一戸建て

価格

2,999万円

所在地

横浜市旭区 上川井町

交通

相模鉄道線「三ッ境」駅 バス停「青葉台」まで 徒歩 6 分 バス利用 11分

横浜線「十日市場」駅 バス停「若葉台近隣公園前」まで 徒歩 7 分 バス利用 24分

土地面積

100.17㎡

建物面積

77.24㎡

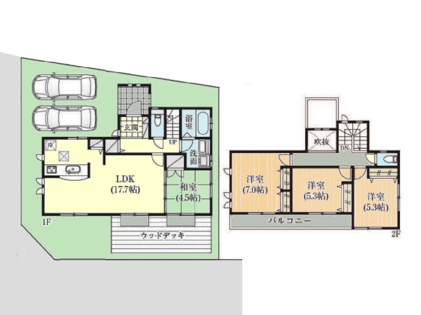
間取り

4LDK

前回情報更新日 2026.02.19 | 次回情報更新予定日 2026.03.05

この物件のココがオススメ!

相鉄線「三ツ境」駅利用。全室2面採光なので、明るく通風良好なお住まいです。R7.12月リフォーム完成予定(キッチン・トイレ・お風呂他)ハウスクリーニング入ります。

お気軽にどうぞ!

お気に入りに追加済み

所在地マップ

申し訳ありません。
所在地マップは会員限定です。

無料の会員登録(簡単1分)で
すぐに物件をご覧になれます。

無料会員登録はこちら

間取り

お気軽にどうぞ!

お気に入りに追加済み

ローンシミュレーション

頭金・金利の場合

この物件の月々のお支払額

58,982

ボーナス時(年2回)お支払額

150,000

年収に対する返済比率

- %

※会員登録し、詳細情報を記入されますと、全ての物件で自動的に金額が表示され、大変便利です。

※まだ会員登録をされていない方は、下記チェック欄をご記入ください。

※上記計算は物件価格 2,999万円+諸経費 8%込みの金額による結果となります。

※返済金額はあくまでも目安です。

お客様の条件からシミュレーションするには?

会員登録してローン情報を入力しておくと全ての物件に対してローンシミュレーションを表示できます。

お気軽にどうぞ!

お気に入りに追加済み

詳細情報

この一戸建てを見ている人におすすめの物件

お気軽にどうぞ!

お気に入りに追加済み

loading...