物件種別
新築一戸建て
価格
5,588万円
所在地
横浜市神奈川区 大口通
交通
横浜線「大口」駅 徒歩 3 分
東急東横線「妙蓮寺」駅 徒歩 18 分
土地面積
60.16㎡
建物面積
109.68㎡
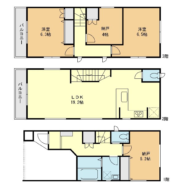
間取り
2LDK+2S
前回情報更新日 2026.03.05 | 次回情報更新予定日 2026.03.19
この物件のココがオススメ!
JR横浜線「大口」駅から徒歩3分。プライバシーに配慮した2階リビング。ペアガラス他、設備充実。バルコニー2面有り。納戸もお部屋としてご利用可能です。
お気軽にどうぞ!
お気に入りに追加済み
お気軽にどうぞ!
お気に入りに追加済み
この物件の月々のお支払額
ボーナス時(年2回)お支払額
年収に対する返済比率
※会員登録し、詳細情報を記入されますと、全ての物件で自動的に金額が表示され、大変便利です。
※まだ会員登録をされていない方は、下記チェック欄をご記入ください。
※上記計算は物件価格 5,588万円+諸経費 8%込みの金額による結果となります。
※返済金額はあくまでも目安です。
会員登録してローン情報を入力しておくと全ての物件に対してローンシミュレーションを表示できます。
会員未登録のお客様
会員登録をして会員情報にシミュレーション条件が未登録のお客様
マイページから会員登録なしでシミュレーションするお客様
公園
周辺環境:大口西公園(大口西公園まで250m)(250m)
スーパー
周辺環境:ライフ大口店(ライフ大口店まで700m)(700m)
スーパー
周辺環境:MEGAドン・キホーテUNY大口店(700m)
幼稚園・保育園
周辺環境:銀嶺幼稚園(950m)
中学校
周辺環境:横浜市立神奈川中学校(650m)
小学校
周辺環境:横浜市立大口台小学校(600m)
公園
周辺環境:大口西公園(250m)
病院
周辺環境:長谷川医院(800m)
幼稚園・保育園
周辺環境:白幡保育園(m)
お気軽にどうぞ!
お気に入りに追加済み
学区
大口台小学校
神奈川中学校
用途地域
第一種住居
地目
宅地
建ぺい率
60%
容積率
160%
駐車場
有り ビルトイン車庫 駐車場面積:11.56㎡
接道
西 4.0m
権利
所有権
私道面積
無し
セットバック
無し
建物構造
木造
建物階数
3階
築年月
2026/03
入居日
2026/04
建築確認番号
第25KAK建確01564号
都市計画
市街化区域
取引態様
仲介
物件番号
47739-28
設備
都市ガス、公営水道、公共下水、ビルトインガレージ、駐車場1台、緑豊かな住宅地、閑静な住宅地、スーパーが近い(10分以内)、2沿線以上利用可、小学校徒歩10分以内、中学校徒歩10分以内、保育施設・幼稚園5分以内、公園5分以内、コンビニ5分以内、対面キッチン、都市ガス、システムキッチン、ガス3口、対面キッチン、L型キッチン、食器洗い機付き、浄水器、ユニットバス、追い焚き、浴室乾燥機、ウォシュレット、トイレ2ヶ所、浴室に窓、暖房便座、浴室暖房、バルコニー2面、3階建以上、LDK18畳以上、採光2面、採光3面、全室フローリング、リビング階段、クローゼット、収納、床下収納、下駄箱、シャンプドレッサー付き、モニタ付きインターフォン、複層ガラス、全居室複層ガラスか複層サッシ、24時間換気システム、建物10年保証
特記事項
崖上につき建築制限 宅地造成工事規制区域 高度地区 準防火地域 日影制限 建築基準法第22条区域 建物建築・再建築の際、深基礎、基礎杭、擁壁の補修・再構築、外壁後退等の対策が必要となる場合有。建物面積に車庫面積11.56平米含 建物面積に備蓄倉庫2.48平米含 崖上につき建築制限:有/宅地造成工事規制区域:有/高度地区:有/準防火地域:有/日影制限:有/建築基準法第22条区域 建物建築・再建築の際、深基礎、基礎杭、擁壁の補修・再構築、外壁後退等の対策が必要となる場合有。建物面積に車庫面積11.56平米含 建物面積に備蓄倉庫2.48平米含。
備考
JR横浜線「大口」駅から徒歩3分。プライバシーに配慮した2階リビング。ペアガラス他、設備充実。バルコニー2面有り。納戸もお部屋としてご利用可能です。
お気軽にどうぞ!
お気に入りに追加済み
loading...