物件種別
新築一戸建て
価格
5,590万円
所在地
横浜市栄区 上之町
土地面積
203.61㎡
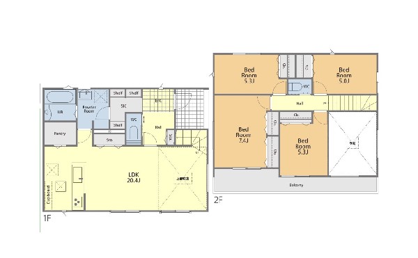
建物面積
108.26㎡
間取り
4LDK
前回情報更新日 2026.01.29 | 次回情報更新予定日 2026.02.12
この物件のココがオススメ!
JR「港南台」駅利用。角地の為、開放感ある立地。ご家族との「コミュニケーションが取りやすい対面キッチン・リビングイン階段のLDK。
お気軽にどうぞ!
お気に入りに追加済み
お気軽にどうぞ!
お気に入りに追加済み
この物件の月々のお支払額
ボーナス時(年2回)お支払額
年収に対する返済比率
※会員登録し、詳細情報を記入されますと、全ての物件で自動的に金額が表示され、大変便利です。
※まだ会員登録をされていない方は、下記チェック欄をご記入ください。
※上記計算は物件価格 5,590万円+諸経費 8%込みの金額による結果となります。
※返済金額はあくまでも目安です。
会員登録してローン情報を入力しておくと全ての物件に対してローンシミュレーションを表示できます。
会員未登録のお客様
会員登録をして会員情報にシミュレーション条件が未登録のお客様
マイページから会員登録なしでシミュレーションするお客様
お気軽にどうぞ!
お気に入りに追加済み
学区
上郷小学校
上郷中学校
用途地域
第一種低層住居専用
地目
宅地
建ぺい率
50%
容積率
80%
駐車場
有り カースペース
接道
東 6.5m 北 4.5m
権利
所有権
私道面積
無し
セットバック
無し
建物構造
木造
建物階数
2階
築年月
2025/11
入居日
即時
都市計画
市街化区域
取引態様
仲介
物件番号
47790
設備
都市ガス、公営水道、公共下水、吹き抜け、駐車場2台以上、緑豊かな住宅地、閑静な住宅地、角地、土地50坪以上、前道6m以上、隣家との間隔が大きい、小学校徒歩10分以内、中学校徒歩10分以内、保育施設・幼稚園5分以内、公園5分以内、コンビニ5分以内、シューズインクローク、ウォークインクローゼット、対面キッチン、パントリー、都市ガス、システムキッチン、ガス3口、対面キッチン、食器洗い機付き、I型キッチン、パントリー(食器・食品の収納庫)、バルコニー、ワイドバルコニー、南面バルコニー、2階建、LDK18畳以上、全室2面採光、フローリング、リビング階段、クローゼット、ウォークインクローゼット、収納、床下収納、全居室収納、シューズインクローク、シャンプドレッサー付き、フラット35Sに対応、モニタ付きインターフォン、複層ガラス、24時間換気システム、建物10年保証
特記事項
崖上につき建築制限:有/隅切り:有/宅地造成工事規制区域:有/高度地区:有/特別用途制限地域:有/日影制限:有/敷地面積最低限度:有/高さ限度:有/建築基準法第22条による区域 建物建築・再建築の際、深基礎、基礎杭、擁壁の補修・再構築、外壁後退等の対策が必要となる場合有。
備考
JR「港南台」駅利用。角地の為、開放感ある立地。ご家族との「コミュニケーションが取りやすい対面キッチン・リビングイン階段のLDK。
お気軽にどうぞ!
お気に入りに追加済み
loading...