物件種別
新築一戸建て
価格
4,680万円
所在地
横浜市保土ケ谷区 明神台
交通
相模鉄道線「星川」駅 徒歩 8 分
土地面積
80.50㎡
建物面積
86.78㎡
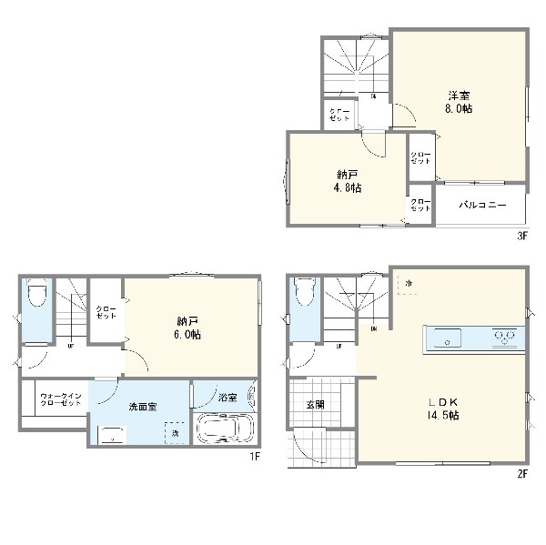
間取り
1LDK+2S
前回情報更新日 2026.04.02 | 次回情報更新予定日 2026.04.16
この物件のココがオススメ!
相鉄線「星川」駅から徒歩8分。通勤・通学に便利な立地。納戸2室もお部屋としてご利用頂けます。浴室間暖房乾燥機、食洗機、浄水機他設備充実。
お気軽にどうぞ!
お気に入りに追加済み
お気軽にどうぞ!
お気に入りに追加済み
この物件の月々のお支払額
ボーナス時(年2回)お支払額
年収に対する返済比率
※会員登録し、詳細情報を記入されますと、全ての物件で自動的に金額が表示され、大変便利です。
※まだ会員登録をされていない方は、下記チェック欄をご記入ください。
※上記計算は物件価格 4,680万円+諸経費 8%込みの金額による結果となります。
※返済金額はあくまでも目安です。
会員登録してローン情報を入力しておくと全ての物件に対してローンシミュレーションを表示できます。
会員未登録のお客様
会員登録をして会員情報にシミュレーション条件が未登録のお客様
マイページから会員登録なしでシミュレーションするお客様
駅
周辺環境:相模鉄道星川駅(相模鉄道星川駅まで550m)(550m)
スーパー
周辺環境:いなげや横浜星川駅前店(いなげや横浜星川駅前店まで450m)(450m)
公園
周辺環境:保土ヶ谷公園(保土ヶ谷公園まで800m)(800m)
小学校
周辺環境:横浜市立星川小学校(横浜市立星川小学校まで550m)(550m)
中学校
周辺環境:横浜市立保土ケ谷中学校(横浜市立保土ケ谷中学校まで1700m)(1700m)
幼稚園・保育園
周辺環境:明神台保育園(明神台保育園まで100m)(100m)
幼稚園・保育園
周辺環境:保土ヶ谷幼稚園(保土ヶ谷幼稚園まで1300m)(1300m)
病院
周辺環境:明神台クリニック(明神台クリニックまで200m)(200m)
ホームセンター
周辺環境:ホームセンターコーナン保土ヶ谷星川店(550m)
お気軽にどうぞ!
お気に入りに追加済み
学区
星川小学校
保土ケ谷中学校
用途地域
第二種中高層住居専用
地目
宅地
建ぺい率
60%
容積率
150%
駐車場
有り カースペース
接道
南西 16.0m
権利
所有権
私道面積
無し
セットバック
無し
建物構造
木造
建物階数
3階
築年月
2026/03
入居日
2026/04
建築確認番号
第2025SBC-確00015号
都市計画
市街化区域
取引態様
仲介
物件番号
47818-B
設備
都市ガス、公営水道、公共下水、駐車場1台、高台に立地、緑豊かな住宅地、閑静な住宅地、市街地が近い、周辺交通量少なめ、スーパーが近い(10分以内)、2沿線以上利用可、小学校徒歩10分以内、保育施設・幼稚園5分以内、公園5分以内、対面キッチン、都市ガス、システムキッチン、ガス3口、対面キッチン、食器洗い機付き、浄水器、ユニットバス、追い焚き、浴室乾燥機、トイレ2ヶ所、浴室1坪以上、バルコニー、南面バルコニー、3階建以上、省エネ給湯器、採光2面、全室2面採光、フローリング、全室フローリング、リビング階段、クローゼット、収納、床下収納、下駄箱、全居室収納、シャンプドレッサー付き、フラット35Sに対応、モニタ付きインターフォン、複層ガラス、通風良好、陽当り良好、24時間換気システム、建物10年保証
特記事項
不整形地 宅地造成工事規制区域 高度地区 準防火地域 日影制限 一部協定通路 接道と段差 傾斜地含 建築基準法第22条区域 道路占有料16280円/年要 不整形地:有/宅地造成工事規制区域:有/高度地区:有/準防火地域:有/日影制限:有/一部協定通路:有/接道と段差:有/傾斜地含 建築基準法第22条区域 道路占有料16280円/年要。
備考
相鉄線「星川」駅から徒歩8分。通勤・通学に便利な立地。納戸2室もお部屋としてご利用頂けます。浴室間暖房乾燥機、食洗機、浄水機他設備充実。
お気軽にどうぞ!
お気に入りに追加済み
loading...