物件種別
新築一戸建て
価格
5,180万円
所在地
横浜市旭区 金が谷1丁目
交通
相模鉄道線「三ッ境」駅 徒歩 18 分
いずみ野線「二俣川」駅 バス停「ニュータウン第7」まで 徒歩 6 分 バス利用 9分
土地面積
122.40㎡
建物面積
91.09㎡
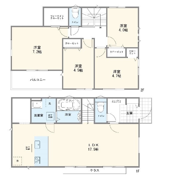
間取り
4LDK
前回情報更新日 2025.11.27 | 次回情報更新予定日 2025.12.11
この物件のココがオススメ!
相鉄線「三ツ境」駅利用。全室2面採光なので、明るく通風良好なお住まいです。LDKは、対面キッチン・リビングイン階段。季節物や大物の収納に心強いWIC完備。
お気軽にどうぞ!
お気に入りに追加済み
お気軽にどうぞ!
お気に入りに追加済み
この物件の月々のお支払額
ボーナス時(年2回)お支払額
年収に対する返済比率
※会員登録し、詳細情報を記入されますと、全ての物件で自動的に金額が表示され、大変便利です。
※まだ会員登録をされていない方は、下記チェック欄をご記入ください。
※上記計算は物件価格 5,180万円+諸経費 8%込みの金額による結果となります。
※返済金額はあくまでも目安です。
会員登録してローン情報を入力しておくと全ての物件に対してローンシミュレーションを表示できます。
会員未登録のお客様
会員登録をして会員情報にシミュレーション条件が未登録のお客様
マイページから会員登録なしでシミュレーションするお客様
公園
周辺環境:今宿神成谷公園(今宿神成谷公園まで400m)(400m)
公園
周辺環境:笹野台第二公園(笹野台第二公園まで600m)(600m)
幼稚園・保育園
周辺環境:キッズビレッジつくし保育園(キッズビレッジつくし保育園まで1000m)(1000m)
スーパー
周辺環境:そうてつローゼン三ツ境店(そうてつローゼン三ツ境店まで1500m)(1500m)
スーパー
周辺環境:ライフ希望が丘店(ライフ希望が丘店まで2000m)(2000m)
小学校
周辺環境:横浜市立笹野台小学校(横浜市立笹野台小学校まで600m)(600m)
幼稚園・保育園
周辺環境:つくの幼稚園(つくの幼稚園まで950m)(950m)
病院
周辺環境:はせがわこどもクリニック(はせがわこどもクリニックまで1400m)(1400m)
中学校
周辺環境:横浜市立希望が丘中学校(横浜市立希望が丘中学校まで1400m)(1400m)
お気軽にどうぞ!
お気に入りに追加済み
学区
笹野台小学校
希望が丘中学校
用途地域
第一種低層住居専用
地目
宅地
建ぺい率
50%
容積率
100%
駐車場
有り カースペース
接道
東 4.0m
権利
所有権
私道面積
有 0.17m²
セットバック
無し
建物構造
木造
建物階数
2階
築年月
2025/09
入居日
即時
都市計画
市街化区域
取引態様
仲介
物件番号
47868
設備
都市ガス、公営水道、公共下水、駐車場1台、緑豊かな住宅地、閑静な住宅地、小学校徒歩10分以内、公園5分以内、ウォークインクローゼット、対面キッチン、都市ガス、システムキッチン、ガス3口、対面キッチン、食器洗い機付き、浄水器、I型キッチン、ユニットバス、追い焚き、浴室乾燥機、ウォシュレット、トイレ2ヶ所、浴室1坪以上、浴室に窓、暖房便座、浴室暖房、バルコニー、南面バルコニー、2階建、LDK15畳以上、全室2面採光、フローリング、リビング階段、クローゼット、ウォークインクローゼット、収納、床下収納、下駄箱、全居室収納、シャンプドレッサー付き、モニタ付きインターフォン、複層ガラス、24時間換気システム、建物10年保証
特記事項
崖上につき建築制限 宅地造成工事規制区域 高度地区 準防火地域 特別用途制限地域 日影制限 敷地内段差 敷地面積最低限度 建物高さ10m以下 傾斜地含 建築基準法第22条による区域 建物建築・再建築の際、深基礎、基礎杭、擁壁の補修・再構築、外壁後退等の対策が必要となる場合有。 崖上につき建築制限:有/宅地造成工事規制区域:有/高度地区:有/準防火地域:有/特別用途制限地域:有/日影制限:有/敷地内段差:有/敷地面積最低限度:有/高さ限度:有/傾斜地含 建築基準法第22条による区域 建物建築・再建築の際、深基礎、基礎杭、擁壁の補修・再構築、外壁後退等の対策が必要となる場合有。
備考
相鉄線「三ツ境」駅利用。全室2面採光なので、明るく通風良好なお住まいです。LDKは、対面キッチン・リビングイン階段。季節物や大物の収納に心強いWIC完備。
お気軽にどうぞ!
お気に入りに追加済み
loading...