物件種別
新築一戸建て
価格
7,990万円
所在地
横浜市港北区 大曽根台
交通
東急東横線「大倉山」駅 徒歩 12 分
東急新横浜線「新綱島」駅 徒歩 18 分
土地面積
121.60㎡
建物面積
105.99㎡
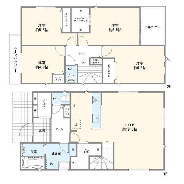
間取り
4LDK
前回情報更新日 2025.11.21 | 次回情報更新予定日 2025.12.05
この物件のココがオススメ!
東急東横線「大倉山」駅から徒歩12分。カースペース2台駐車可能。SIC・WIC・パントリー完備。LDKは対面キッチン・リビングイン階段。
お気軽にどうぞ!
お気に入りに追加済み
お気軽にどうぞ!
お気に入りに追加済み
この物件の月々のお支払額
ボーナス時(年2回)お支払額
年収に対する返済比率
※会員登録し、詳細情報を記入されますと、全ての物件で自動的に金額が表示され、大変便利です。
※まだ会員登録をされていない方は、下記チェック欄をご記入ください。
※上記計算は物件価格 7,990万円+諸経費 8%込みの金額による結果となります。
※返済金額はあくまでも目安です。
会員登録してローン情報を入力しておくと全ての物件に対してローンシミュレーションを表示できます。
会員未登録のお客様
会員登録をして会員情報にシミュレーション条件が未登録のお客様
マイページから会員登録なしでシミュレーションするお客様
スーパー
周辺環境:ライフ大倉山店(ライフ大倉山店まで820m 周囲にはいくつかのスーパーが点在しており、目的や曜日などで使い分けるもの良いですね。少し変わった食材で新しいお料理にチャレンジはいかがですか。)(820m)
スーパー
周辺環境:まいばすけっと大倉山店(まいばすけっと大倉山店まで990m 少量の野菜やお肉なども揃い、大型スーパーに行くほどではない時などに便利なコンビニサイズのスーパー。買い忘れた物をちょっと調達したいときなどにも重宝します。)(990m)
コンビニ
周辺環境:セブンイレブン横浜太尾町店(セブンイレブン横浜太尾町店まで600m 時間を問わず、幅広い品物が揃うコンビニ。いまや買物だけではなく、行政、銀行、民間サービス等、日常生活に深く関係する最重要施設としてなるつつある。やっぱり近いと嬉しい。)(600m)
中学校
周辺環境:横浜市立大綱中学校(横浜市立大綱中学校まで1320m 成長の過程でより濃い時間を過ごす3年間。成長していくお子様の姿が目に浮かびます。この学校で過ごす時間は、お子様にとって、とても大切な思い出となるはずです。※実際の通学路の距離と異なる場合がございます。)(1320m)
小学校
周辺環境:横浜市立大曽根小学校(横浜市立大曽根小学校まで500m お子様が一日の中でも長い時間を過ごす小学校。のびのびと過ごし、広い校庭で元気に駆け回ったり、どんどん成長していくお子様の姿が目に浮かびます。※実際の通学路の距離と異なる場合がございます。)(500m)
幼稚園・保育園
周辺環境:横浜市大曽根保育園(横浜市大曽根保育園まで550m 近隣には保育園が点在しており、子育て中の方にとって、とても心強い環境です。毎日の生活の一部だから、保育園が近いことで送り迎えなどの負担もなりますね。)(550m)
病院
周辺環境:医療法人三星会大倉山記念病院(医療法人三星会大倉山記念病院まで860m 内科、整形外科、眼科をはじめ11の診療科がある総合病院。患者さんが安心できる医療を提供し、地域の方々から信頼される病院を目指します。)(860m)
公園
周辺環境:大倉山公園(大倉山公園まで300m 閑静な住宅街の中にあり梅の名所として有名な公園。春には46種類約220本の梅が咲き誇ります。毎年2月には「大倉山観梅会」が行われます。ドラマのロケ地になることも。)(300m)
お気軽にどうぞ!
お気に入りに追加済み
学区
大曽根小学校
樽町中学校
用途地域
第一種低層住居専用
地目
宅地
建ぺい率
50%
容積率
100%
駐車場
有り カースペース
接道
東 4.0m 北 4.0m
権利
所有権
私道面積
有 2.04m²
セットバック
無し
建物構造
木造
建物階数
2階
築年月
2025/11
入居日
2025/12
建築確認番号
第2025SBC-確00477H号
都市計画
市街化区域
取引態様
仲介
物件番号
47874-2
設備
都市ガス、公営水道、公共下水、駐車場2台以上、区画整理地内、閑静な住宅地、角地、都市近郊、地盤調査済、市街地が近い、隣家との間隔が大きい、周辺交通量少なめ、スーパーが近い(10分以内)、始発駅、2沿線以上利用可、小学校徒歩10分以内、公園5分以内、シューズインクローク、ウォークインクローゼット、対面キッチン、パントリー、都市ガス、システムキッチン、ガス3口、対面キッチン、食器洗い機付き、浄水器、I型キッチン、パントリー(食器・食品の収納庫)、ユニットバス、追い焚き、浴室乾燥機、ウォシュレット、トイレ2ヶ所、浴室1坪以上、浴室に窓、暖房便座、バルコニー、2階建、LDK18畳以上、省エネ給湯器、採光2面、東南向き、全室フローリング、リビング階段、クローゼット、ウォークインクローゼット、収納、床下収納、全居室収納、シューズインクローク、シャンプドレッサー付き、庭、モニタ付きインターフォン、全居室複層ガラスか複層サッシ、通風良好、陽当り良好、24時間換気システム、建物10年保証
特記事項
崖下につき建築制限 崖上につき建築制限 不整形地 宅地造成工事規制区域 高度地区 準防火地域 日影制限 敷地面積最低限度 建物高さ10m以下 建築基準法第22条区域 建物建築・再建築の際、深基礎、基礎杭、擁壁の補修・再構築、外壁後退等の対策が必要となる場合有。建物建築・再建築の際、防護壁の設置、高基礎、外壁後退等の対策が必要となる場合有。 別途私道通行承諾書有』 崖下につき建築制限:有/崖上につき建築制限:有/不整形地:有/宅地造成工事規制区域:有/高度地区:有/準防火地域:有/日影制限:有/敷地面積最低限度:有/高さ限度:有/建築基準法第22条区域 建物建築・再建築の際、深基礎、基礎杭、擁壁の補修・再構築、外壁後退等の対策が必要となる場合有。建物建築・再建築の際、防護壁の設置、高基礎、外壁後退等の対策が必要となる場合有。 別途私道通行承諾書有。
備考
東急東横線「大倉山」駅から徒歩12分。カースペース2台駐車可能。SIC・WIC・パントリー完備。LDKは対面キッチン・リビングイン階段。
お気軽にどうぞ!
お気に入りに追加済み
loading...