物件種別
新築一戸建て
価格
5,490万円
所在地
横浜市戸塚区 汲沢7丁目
交通
ブルーライン「踊場」駅 徒歩 10 分
土地面積
113.58㎡
建物面積
102.47㎡
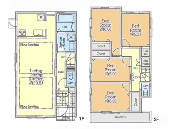
間取り
4LDK
前回情報更新日 2025.11.27 | 次回情報更新予定日 2025.12.11
この物件のココがオススメ!
BL「踊場」駅から徒歩8分。南道路に接道。カースペース2台駐車可能。ご家族とのコミュニケーションが取りやすいリビングイン階段・対面キッチンのLDKは20帖以上。
お気軽にどうぞ!
お気に入りに追加済み
お気軽にどうぞ!
お気に入りに追加済み
この物件の月々のお支払額
ボーナス時(年2回)お支払額
年収に対する返済比率
※会員登録し、詳細情報を記入されますと、全ての物件で自動的に金額が表示され、大変便利です。
※まだ会員登録をされていない方は、下記チェック欄をご記入ください。
※上記計算は物件価格 5,490万円+諸経費 8%込みの金額による結果となります。
※返済金額はあくまでも目安です。
会員登録してローン情報を入力しておくと全ての物件に対してローンシミュレーションを表示できます。
会員未登録のお客様
会員登録をして会員情報にシミュレーション条件が未登録のお客様
マイページから会員登録なしでシミュレーションするお客様
小学校
周辺環境:横浜市立葛野小学校(横浜市立葛野小学校まで650m)(650m)
中学校
周辺環境:横浜市立汲沢中学校(横浜市立汲沢中学校まで1100m)(1100m)
公園
周辺環境:踊場公園(踊場公園まで400m)(400m)
公園
周辺環境:壱町ヶ谷公園(壱町ヶ谷公園まで350m)(350m)
スーパー
周辺環境:A・コープ中田店(A・コープ中田店まで900m)(900m)
幼稚園・保育園
周辺環境:白梅保育園(280m)
幼稚園・保育園
周辺環境:みどり幼稚園(800m)
ショッピングセンター
周辺環境:サクラス戸塚(1900m)
スーパー
周辺環境:イトーヨーカドー立場店(1800m)
お気軽にどうぞ!
お気に入りに追加済み
学区
横浜市立葛野小学校
横浜市立汲沢中学校
用途地域
第一種低層住居専用
地目
宅地
建ぺい率
50%
容積率
80%
駐車場
有り カースペース
接道
南 4.5m
権利
所有権
私道面積
無し
セットバック
無し
建物構造
木造
建物階数
2階
築年月
2026/01
入居日
2026/02
建築確認番号
第2025SBC-確00643H号
都市計画
市街化区域
取引態様
仲介
物件番号
47873-2
設備
都市ガス、公営水道、公共下水、駐車場2台以上、緑豊かな住宅地、閑静な住宅地、前道6m以上、スーパーが近い(10分以内)、2沿線以上利用可、公園5分以内、コンビニ5分以内、ウォークインクローゼット、対面キッチン、都市ガス、システムキッチン、対面キッチン、食器洗い機付き、浄水器、パントリー(食器・食品の収納庫)、ユニットバス、浴室乾燥機、ウォシュレット、トイレ2ヶ所、浴室に窓、バルコニー、南面バルコニー、2階建、LDK20畳以上、採光2面、東南向き、フローリング、全室フローリング、リビング階段、クローゼット、ウォークインクローゼット、収納、床下収納、下駄箱、全居室収納、シャンプドレッサー付き、フラット35Sに対応、モニタ付きインターフォン、複層ガラス、全居室複層ガラスか複層サッシ、24時間換気システム、建物10年保証
特記事項
宅地造成工事規制区域 高度地区 準防火地域 敷地面積最低限度 建築基準法第22条区域 踊場地区プラン 私道持分1~3号棟で13.4平米有 宅地造成工事規制区域:有/高度地区:有/準防火地域:有/敷地面積最低限度:有/高さ限度:有/建築基準法第22条区域 踊場地区プラン 私道持分1~3号棟で13.4平米有。
備考
BL「踊場」駅から徒歩8分。南道路に接道。カースペース2台駐車可能。ご家族とのコミュニケーションが取りやすいリビングイン階段・対面キッチンのLDKは20帖以上。
お気軽にどうぞ!
お気に入りに追加済み
loading...