物件種別
新築一戸建て
価格
3,990万円
所在地
横浜市戸塚区 上矢部町
交通
いずみ野線「弥生台」駅 バス停「領家中学校前」まで 徒歩 8 分 バス利用 9分
土地面積
90.36㎡
建物面積
104.54㎡
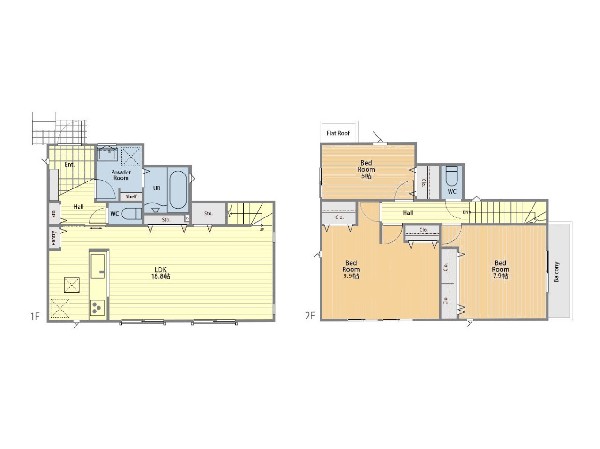
間取り
4LDK
前回情報更新日 2026.05.14 | 次回情報更新予定日 2026.05.28
この物件のココがオススメ!
複数路線が乗り入れる「戸塚」駅利用。全室2面採光なので、明るく通風良好なお住まいです。LDKは、ご家族との会話が弾む対面キッチン。全居室収納付。
お気軽にどうぞ!
お気に入りに追加済み
お気軽にどうぞ!
お気に入りに追加済み
この物件の月々のお支払額
ボーナス時(年2回)お支払額
年収に対する返済比率
※会員登録し、詳細情報を記入されますと、全ての物件で自動的に金額が表示され、大変便利です。
※まだ会員登録をされていない方は、下記チェック欄をご記入ください。
※上記計算は物件価格 3,990万円+諸経費 8%込みの金額による結果となります。
※返済金額はあくまでも目安です。
会員登録してローン情報を入力しておくと全ての物件に対してローンシミュレーションを表示できます。
会員未登録のお客様
会員登録をして会員情報にシミュレーション条件が未登録のお客様
マイページから会員登録なしでシミュレーションするお客様
スーパー
周辺環境:マルエツ名瀬店(1900m)
中学校
周辺環境:横浜市立岡津中学校(1500m)
小学校
周辺環境:横浜市立上矢部小学校(650m)
病院
周辺環境:うえの小児科クリニック(2100m)
公園
周辺環境:鳥が丘第二公園(800m)
幼稚園・保育園
周辺環境:レインボー保育園(600m)
公園
周辺環境:鳥が丘第二公園(800m)
幼稚園・保育園
周辺環境:東台幼稚園(1300m)
スーパー
周辺環境:そうてつローゼン山手台店(m)
お気軽にどうぞ!
お気に入りに追加済み
学区
上矢部小学校
岡津中学校
用途地域
工業
地目
宅地
建ぺい率
60%
容積率
200%
駐車場
有り カースペース
接道
北 8.0m
権利
所有権
私道面積
無し
セットバック
無し
建物構造
木造
建物階数
2階
築年月
2025/11
入居日
即時
建築確認番号
第2024SBC-確03900H号
都市計画
市街化区域
取引態様
仲介
物件番号
47678-2
設備
都市ガス、公営水道、公共下水、駐車場1台、緑豊かな住宅地、閑静な住宅地、前道6m以上、スーパーが近い(10分以内)、2沿線以上利用可、小学校徒歩10分以内、公園5分以内、コンビニ5分以内、シューズインクローク、対面キッチン、パントリー、都市ガス、システムキッチン、ガス3口、対面キッチン、I型キッチン、パントリー(食器・食品の収納庫)、ユニットバス、追い焚き、浴室乾燥機、ウォシュレット、トイレ2ヶ所、浴室に窓、暖房便座、浴室暖房、バルコニー、2階建、LDK18畳以上、全室2面採光、フローリング、スマートキー、クローゼット、収納、床下収納、下駄箱、全居室収納、シューズインクローク、シャンプドレッサー付き、フラット35Sに対応、モニタ付きインターフォン、24時間換気システム、建物10年保証
特記事項
不整形地 宅地造成工事規制区域 高度地区 建築基準法第22条による区域 不整形地:有/宅地造成工事規制区域:有/高度地区:有/建築基準法第22条による区域。
備考
複数路線が乗り入れる「戸塚」駅利用。全室2面採光なので、明るく通風良好なお住まいです。LDKは、ご家族との会話が弾む対面キッチン。全居室収納付。
お気軽にどうぞ!
お気に入りに追加済み
loading...