物件種別
新築一戸建て
価格
3,990万円
所在地
横浜市保土ケ谷区 法泉3丁目
交通
横須賀線「保土ヶ谷」駅 バス停「法泉下」まで 徒歩 2 分 バス利用 13分
相模鉄道線「二俣川」駅 バス停「法泉下」まで 徒歩 2 分 バス利用 29分
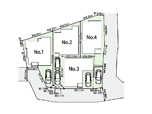
土地面積
96.19㎡
建物面積
99.15㎡
間取り
4LDK
前回情報更新日 2026.01.30 | 次回情報更新予定日 2026.02.13
この物件のココがオススメ!
JR「保土ヶ谷」駅利用。閑静な住環境。ご家族との会話が弾む対面キッチンのLDK。食洗機・浴室乾燥機他設備充実のお住まいです。
お気軽にどうぞ!
お気に入りに追加済み
お気軽にどうぞ!
お気に入りに追加済み
この物件の月々のお支払額
ボーナス時(年2回)お支払額
年収に対する返済比率
※会員登録し、詳細情報を記入されますと、全ての物件で自動的に金額が表示され、大変便利です。
※まだ会員登録をされていない方は、下記チェック欄をご記入ください。
※上記計算は物件価格 3,990万円+諸経費 8%込みの金額による結果となります。
※返済金額はあくまでも目安です。
会員登録してローン情報を入力しておくと全ての物件に対してローンシミュレーションを表示できます。
会員未登録のお客様
会員登録をして会員情報にシミュレーション条件が未登録のお客様
マイページから会員登録なしでシミュレーションするお客様
幼稚園・保育園
周辺環境:さかいぎ幼稚園(1200m)
スーパー
周辺環境:サミット権太坂スクエア店(1400m)
幼稚園・保育園
周辺環境:境木保育園(550m)
病院
周辺環境:関小児科医院(600m)
ショッピングセンター
周辺環境:オーロラモール(2000m)
中学校
周辺環境:横浜市立橘中学校(2100m)
公園
周辺環境:法泉公園(450m)
小学校
周辺環境:横浜市立初音が丘小学校(1300m)
公園
周辺環境:境木第四公園(270m)
お気軽にどうぞ!
お気に入りに追加済み
学区
初音が丘小学校
橘中学校
用途地域
第一種住居
地目
宅地
建ぺい率
60%
容積率
160%
駐車場
有り カースペース
接道
南 4.0m
権利
所有権
私道面積
無し
セットバック
無し
建物構造
木造
建物階数
2階
築年月
2026/01
入居日
2026/02
建築確認番号
第2025SBC-確00299H号
都市計画
市街化区域
取引態様
仲介
物件番号
48133-1
設備
都市ガス、公営水道、公共下水、駐車場1台、緑豊かな住宅地、閑静な住宅地、南側道路面す、2沿線以上利用可、保育施設・幼稚園5分以内、システムキッチン、ガス3口、対面キッチン、食器洗い機付き、I型キッチン、パントリー(食器・食品の収納庫)、ユニットバス、浴室乾燥機、ウォシュレット、トイレ2ヶ所、浴室に窓、バルコニー、南面バルコニー、2階建、LDK15畳以上、全室2面採光、フローリング、クローゼット、収納、床下収納、下駄箱、全居室収納、シューズインクローク、シャンプドレッサー付き、モニタ付きインターフォン、24時間換気システム、対面キッチン、パントリー、都市ガス、建物10年保証
特記事項
不整形地 宅地造成工事規制区域 高度地区 準防火地域 日影制限 建築基準法第22条区域 別途私道持分1号棟から4号棟で34.29平米有 一部協定通路 建築基準法第22条区域 別途私道持分1号棟から4号棟で34.29平米有/不整形地:有/宅地造成工事規制区域:有/高度地区:有/準防火地域:有/日影制限:有/一部協定通路:有。
備考
JR「保土ヶ谷」駅利用。閑静な住環境。ご家族との会話が弾む対面キッチンのLDK。食洗機・浴室乾燥機他設備充実のお住まいです。
お気軽にどうぞ!
お気に入りに追加済み
loading...