物件種別
新築一戸建て
価格
6,099万円
所在地
横浜市栄区 桂台西2丁目
土地面積
179.24㎡
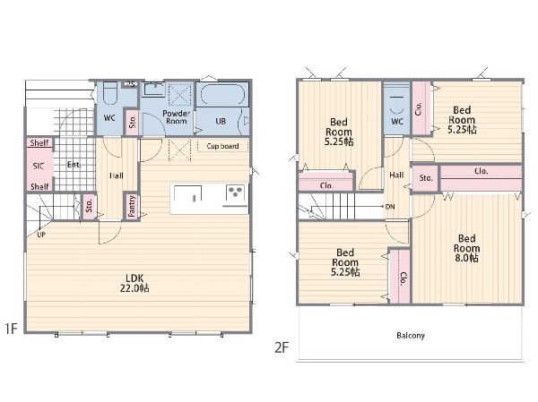
建物面積
108.47㎡
間取り
4LDK
前回情報更新日 2026.04.14 | 次回情報更新予定日 2026.04.28
この物件のココがオススメ!
JR東海道線「大船」駅利用。カースペース3台駐車可能。LDKは対面キッチン・リビングイン階段。浴室乾燥機他、設備充実。SIC完備。全居室収納有。
お気軽にどうぞ!
お気に入りに追加済み
お気軽にどうぞ!
お気に入りに追加済み
この物件の月々のお支払額
ボーナス時(年2回)お支払額
年収に対する返済比率
※会員登録し、詳細情報を記入されますと、全ての物件で自動的に金額が表示され、大変便利です。
※まだ会員登録をされていない方は、下記チェック欄をご記入ください。
※上記計算は物件価格 6,099万円+諸経費 8%込みの金額による結果となります。
※返済金額はあくまでも目安です。
会員登録してローン情報を入力しておくと全ての物件に対してローンシミュレーションを表示できます。
会員未登録のお客様
会員登録をして会員情報にシミュレーション条件が未登録のお客様
マイページから会員登録なしでシミュレーションするお客様
お気軽にどうぞ!
お気に入りに追加済み
学区
桂台小学校
桂台中学校
用途地域
第一種低層住居専用
地目
宅地
建ぺい率
40%
容積率
80%
駐車場
有り カースペース
接道
東 6.6m
権利
所有権
私道面積
無し
セットバック
無し
建物構造
木造
建物階数
2階
築年月
2026/05
入居日
2026/06
建築確認番号
第25UDI1K建09424号
都市計画
市街化区域
取引態様
仲介
物件番号
48725-2
設備
都市ガス、公営水道、公共下水、駐車場2台以上、緑豊かな住宅地、閑静な住宅地、前道6m以上、スーパーが近い(10分以内)、2沿線以上利用可、小学校徒歩10分以内、中学校徒歩10分以内、公園5分以内、シューズインクローク、対面キッチン、パントリー、都市ガス、システムキッチン、ガス3口、対面キッチン、食器洗い機付き、I型キッチン、パントリー(食器・食品の収納庫)、ユニットバス、追い焚き、浴室乾燥機、ウォシュレット、トイレ2ヶ所、浴室1坪以上、浴室に窓、暖房便座、浴室暖房、バルコニー2面、南面バルコニー、2階建、LDK20畳以上、南向き、全室2面採光、フローリング、リビング階段、クローゼット、収納、床下収納、下駄箱、全居室収納、シューズインクローク、シャンプドレッサー付き、フラット35Sに対応、モニタ付きインターフォン、24時間換気システム、建物10年保証
特記事項
壁面後退:有/宅地造成工事規制区域:有/高度地区:有/日影制限:有/敷地面積最低限度:有/高さ限度:有/建築基準法第22条区域 栄桂台地区地区計画 。
備考
JR東海道線「大船」駅利用。カースペース3台駐車可能。LDKは対面キッチン・リビングイン階段。浴室乾燥機他、設備充実。SIC完備。全居室収納有。
お気軽にどうぞ!
お気に入りに追加済み
loading...