物件種別
新築一戸建て
価格
5,988万円
所在地
川崎市川崎区 京町1丁目
交通
京浜急行本線「鶴見市場」駅 徒歩 12 分
南武線「川崎新町」駅 徒歩 10 分
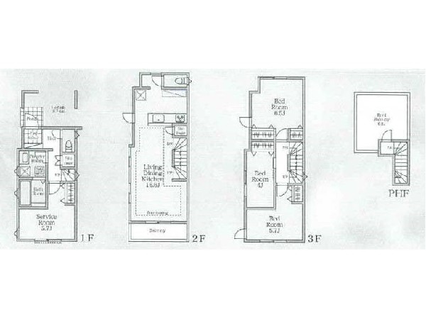
土地面積
80.68㎡
建物面積
103.24㎡
間取り
4LDK
前回情報更新日 2025.10.16 | 次回情報更新予定日 2025.10.30
この物件のココがオススメ!
鶴見市場駅・川崎新町駅まで徒歩圏 周辺に生活至便施設が多く便利な住環境 2階リビングは床暖房付
お気軽にどうぞ!
お気に入りに追加済み
お気軽にどうぞ!
お気に入りに追加済み
この物件の月々のお支払額
ボーナス時(年2回)お支払額
年収に対する返済比率
※会員登録し、詳細情報を記入されますと、全ての物件で自動的に金額が表示され、大変便利です。
※まだ会員登録をされていない方は、下記チェック欄をご記入ください。
※上記計算は物件価格 5,988万円+諸経費 8%込みの金額による結果となります。
※返済金額はあくまでも目安です。
会員登録してローン情報を入力しておくと全ての物件に対してローンシミュレーションを表示できます。
会員未登録のお客様
会員登録をして会員情報にシミュレーション条件が未登録のお客様
マイページから会員登録なしでシミュレーションするお客様
スーパー
周辺環境:ヒルママーケットプレイス京町店(地域密着型の食品スーパーとして、神奈川県川崎市を中心に店舗展開をしている。)(190m)
スーパー
周辺環境:いなげや川崎京町店(関東地方で生鮮食料品を中心に事業を行う食品専門スーパーマーケット「いなげや」。)(350m)
小学校
周辺環境:京町小学校(川崎市の臨海部近く、JR川崎駅からバスで10分程度の利便性のよい地域にある学校です。)(350m)
幼稚園・保育園
周辺環境:ゆりかご幼稚園(園舎・園庭から子供たちの元気な声が聞こえてきます。できることが増えていく、お子様の成長が楽しみです。)(450m)
公園
周辺環境:小田1丁目中央公園(近隣には、公園もあり、青空の下で駆け回ったり、遊具で遊んだり、思い思いの遊びができます。子供たちの元気で楽しそうな声が響き渡ります。)(650m)
中学校
周辺環境:川崎中学校(学校教育目標「自ら学び、自ら考え、自ら行動できる生徒を育てる」)(1200m)
スーパー
周辺環境:ライフコーポレーション川崎京町店(幹線道路沿いにあり、自転車や車で立ち寄りやすい駐車場完備のスーパーです。)(1300m)
駅
周辺環境:JR川崎駅(ショッピングセンター「ラゾーナ川崎」、イタリアのヒルタウンをイメージした複合商業施設「ラ・チッタデッラ」等いつでも楽しめる街。各方面へのアクセスも良好です。)(2000m)
お気軽にどうぞ!
お気に入りに追加済み
学区
京町小学校
川崎中学校
用途地域
第二種住居
地目
宅地
建ぺい率
60%
容積率
200%
駐車場
有り カースペース
接道
東 7.2m
権利
所有権
私道面積
無し
セットバック
無し
建物構造
木造
建物階数
3階
築年月
2025/05
入居日
即時
建築確認番号
第KBI-YKH24-10-3831
都市計画
市街化区域
取引態様
仲介
物件番号
A1002-4
設備
都市ガス、公営水道、公共下水、駐車場2台以上、閑静な住宅地、平坦地、都市近郊、地盤調査済、前道6m以上、市街地が近い、周辺交通量少なめ、スーパーが近い(10分以内)、駅まで平坦、始発駅、2沿線以上利用可、小学校徒歩10分以内、中学校徒歩10分以内、保育施設・幼稚園5分以内、公園5分以内、コンビニ5分以内、ウォークインクローゼット、対面キッチン、都市ガス、システムキッチン、ガス3口、カウンタキッチン、対面キッチン、食器洗い機付き、浄水器、ユニットバス、追い焚き、浴室乾燥機、ウォシュレット、トイレ2ヶ所、浴室1坪以上、浴室に窓、暖房便座、浴室暖房、バルコニー、3階建以上、LDK18畳以上、全室2面採光、フローリング、全室フローリング、リビング階段、クローゼット、ウォークインクローゼット、収納、床下収納、下駄箱、全居室収納、シャンプドレッサー付き、モニタ付きインターフォン、複層ガラス、ディンプルキー、火災警報器(報知機)、通風良好、陽当り良好、24時間換気システム、建物10年保証
特記事項
不整形地:有/景観法:有/航空法:有/高度地区:有/準防火地域:有/日影制限:有/高さ限度:有/敷地面積に路地状部分約27平米含む、駐車は車種により2台可。
備考
鶴見市場駅・川崎新町駅まで徒歩圏 周辺に生活至便施設が多く便利な住環境 2階リビングは床暖房付
お気軽にどうぞ!
お気に入りに追加済み
loading...