物件種別
新築一戸建て
価格
5,680万円
所在地
川崎市川崎区 渡田山王町
交通
南武線「川崎新町」駅 徒歩 4 分
京浜急行本線「八丁畷」駅 徒歩 11 分
土地面積
49.59㎡
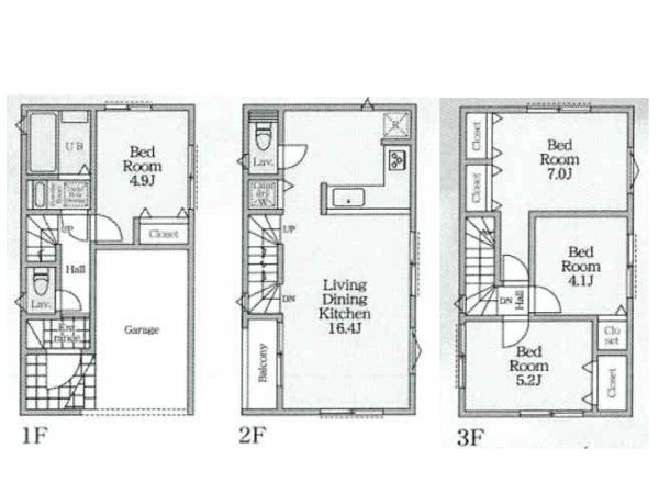
建物面積
103.23㎡
間取り
4LDK
前回情報更新日 2026.01.09 | 次回情報更新予定日 2026.01.23
この物件のココがオススメ!
「川崎新町」「八丁畷」駅の2路線が徒歩圏 公園が目の前で静かな環境です
お気軽にどうぞ!
お気に入りに追加済み
お気軽にどうぞ!
お気に入りに追加済み
この物件の月々のお支払額
ボーナス時(年2回)お支払額
年収に対する返済比率
※会員登録し、詳細情報を記入されますと、全ての物件で自動的に金額が表示され、大変便利です。
※まだ会員登録をされていない方は、下記チェック欄をご記入ください。
※上記計算は物件価格 5,680万円+諸経費 8%込みの金額による結果となります。
※返済金額はあくまでも目安です。
会員登録してローン情報を入力しておくと全ての物件に対してローンシミュレーションを表示できます。
会員未登録のお客様
会員登録をして会員情報にシミュレーション条件が未登録のお客様
マイページから会員登録なしでシミュレーションするお客様
駅
周辺環境:川崎新町駅(南武支線の駅。川崎駅から約15分。周辺は学校や住宅街が広がっています。)(270m)
小学校
周辺環境:京町小学校(川崎市の臨海部近く、JR川崎駅からバスで10分程度の利便性のよい地域にある学校です。)(400m)
中学校
周辺環境:川崎中学校(成長の過程でより濃い時間を過ごす3年間。ここで過ごす時間は、お子様にとって、とても大切な思い出となるはずです。)(950m)
幼稚園・保育園
周辺環境:ゆりかご幼稚園(園舎・園庭から子供たちの元気な声が聞こえてきます。できることが増えていく、お子様の成長が楽しみです。)(500m)
ドラッグストア
周辺環境:ドラッグセイムス京町店(「エブリエブリデイ、セイムス」のオリジナルソングが店内に流れているドラッグストア。)(750m)
お気軽にどうぞ!
お気に入りに追加済み
学区
京町小学校
川崎中学校
用途地域
第二種住居
地目
宅地
建ぺい率
60%
容積率
200%
駐車場
有り ビルトイン車庫
接道
南 5.4m
権利
所有権
私道面積
無し
セットバック
無し
建物構造
木造
建物階数
3階
築年月
2025/07
入居日
即時
建築確認番号
第2024SBC-確02124Y号
都市計画
市街化区域
取引態様
仲介
物件番号
A1352-B
設備
都市ガス、公営水道、公共下水、省エネルギー対策、二重床構造、シックハウス対策、ビルトインガレージ、駐車場1台、閑静な住宅地、平坦地、都市近郊、地盤調査済、南側道路面す、市街地が近い、周辺交通量少なめ、スーパーが近い(10分以内)、駅まで平坦、始発駅、2沿線以上利用可、総合病院徒歩10分以内、小学校徒歩10分以内、保育施設・幼稚園5分以内、公園5分以内、コンビニ5分以内、対面キッチン、パントリー、都市ガス、整形地、眺望良好、システムキッチン、ガス3口、対面キッチン、L型キッチン、食器洗い機付き、浄水器、パントリー(食器・食品の収納庫)、ユニットバス、追い焚き、浴室乾燥機、ウォシュレット、トイレ2ヶ所、浴室に窓、暖房便座、浴室暖房、バルコニー、3階建以上、LDK15畳以上、省エネ給湯器、採光3面、南向き、リビング階段、スマートキー、クローゼット、収納、床下収納、下駄箱、全居室収納、洗面室収納、シャンプドレッサー付き、年内入居可、モニタ付きインターフォン、カードキー、複層ガラス、火災警報器(報知機)、全居室複層ガラスか複層サッシ、セキュリティ充実、陽当り良好、24時間換気システム、建物10年保証
特記事項
景観法:有/航空法:有/高度地区:有/準防火地域:有/日影制限:有/高さ限度:有/建物面積に車庫面積10.81平米を含む。
備考
「川崎新町」「八丁畷」駅の2路線が徒歩圏 公園が目の前で静かな環境です
お気軽にどうぞ!
お気に入りに追加済み
loading...