物件種別
新築一戸建て
価格
5,190万円
所在地
川崎市宮前区 東有馬3丁目
交通
グリーンライン「北山田」駅 徒歩 20 分
田園都市線「鷺沼」駅 バス停「下有馬」まで 徒歩 5 分 バス利用 16分
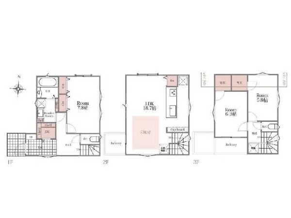
土地面積
108.62㎡
建物面積
82.80㎡
間取り
4LDK
前回情報更新日 2025.12.18 | 次回情報更新予定日 2026.01.01
この物件のココがオススメ!
前面道路8m 低層エリアの閑静住宅地 LDKと水廻りを1階に集約した使い勝手の良い間取り 陽当り良好
お気軽にどうぞ!
お気に入りに追加済み
お気軽にどうぞ!
お気に入りに追加済み
この物件の月々のお支払額
ボーナス時(年2回)お支払額
年収に対する返済比率
※会員登録し、詳細情報を記入されますと、全ての物件で自動的に金額が表示され、大変便利です。
※まだ会員登録をされていない方は、下記チェック欄をご記入ください。
※上記計算は物件価格 5,190万円+諸経費 8%込みの金額による結果となります。
※返済金額はあくまでも目安です。
会員登録してローン情報を入力しておくと全ての物件に対してローンシミュレーションを表示できます。
会員未登録のお客様
会員登録をして会員情報にシミュレーション条件が未登録のお客様
マイページから会員登録なしでシミュレーションするお客様
スーパー
周辺環境:ライフ有馬五丁目店(食べ盛りのお子様がいるご家庭の強い味方、魅力の量・価格のスーパーが近くにあると、とても心強いですね。)(1000m)
スーパー
周辺環境:ロピア馬絹店(電気店のノジマと同じ建物にあります。ロープライスのユートピアを作ることを目標にしています。 )(1200m)
スーパー
周辺環境:ライフ東有馬店 (食べ盛りのお子様がいるご家庭の強い味方、魅力の量・価格のスーパーが近くにあると、とても心強いですね。)(650m)
ドラッグストア
周辺環境:クリエイトS・D 川崎東有馬店 (いまや生活に欠かせないという方も多いドラッグストアは、近所にあると頼もしい限りですね。駐車場も広く、便利です。)(650m)
その他環境写真
周辺環境:西松屋川崎馬絹店(育児用品全般が揃うベビーキッズ用品専門店。)(1200m)
幼稚園・保育園
周辺環境:有馬白百合幼稚園 (緑に囲まれた理想的な環境でひとりひとりの違いを大切にし園の空間全体で想像力を育みます。)(300m)
小学校
周辺環境:有馬小学校 (学校教育目標は、明るい子、がんばる子、やさしい子、元気な子。)(800m)
中学校
周辺環境:有馬中学校(教育目標は「未来に生き、未来を創造し、未来に活躍する人を育成する」。)(1500m)
お気軽にどうぞ!
お気に入りに追加済み
学区
有馬小学校
有馬中学校
用途地域
第一種低層住居専用
地目
宅地
建ぺい率
40%
容積率
80%
駐車場
有り カースペース
接道
西 8.0m
権利
所有権
私道面積
無し
セットバック
無し
建物構造
木造
建物階数
2階
築年月
2025/10
入居日
即時
建築確認番号
第HPA-25-07577-1号
都市計画
市街化区域
取引態様
仲介
物件番号
A1507
設備
都市ガス、公営水道、公共下水、建設住宅性能評価付、省エネルギー対策、耐震構造、シックハウス対策、駐車場1台、整形地、緑豊かな住宅地、閑静な住宅地、都市近郊、地盤調査済、前道6m以上、市街地が近い、周辺交通量少なめ、スーパーが近い(10分以内)、2沿線以上利用可、総合病院徒歩10分以内、保育施設・幼稚園5分以内、公園5分以内、コンビニ5分以内、太陽光発電システム、対面キッチン、都市ガス、整形地、眺望良好、システムキッチン、ガス3口、対面キッチン、食器洗い機付き、浄水器、ユニットバス、追い焚き、浴室乾燥機、ウォシュレット、オートバス付き、トイレ2ヶ所、浴室1坪以上、浴室に窓、高機能トイレ、暖房便座、浴室暖房、バルコニー、テラス、南面バルコニー、2階建、LDK15畳以上、太陽光発電システム、省エネ給湯器、採光2面、南向き、全室2面採光、フローリング、全室フローリング、スマートキー、クローゼット、収納、床下収納、下駄箱、シャンプドレッサー付き、南庭、庭、年内入居可、モニタ付きインターフォン、複層ガラス、火災警報器(報知機)、全居室複層ガラスか複層サッシ、セキュリティ充実、通風良好、陽当り良好、眺望良好、24時間換気システム、建物10年保証
特記事項
文化財保護法:有/壁面後退:有/景観法:有/宅地造成工事規制区域:有/高度地区:有/日影制限:有/敷地面積最低限度:有/高さ限度:有/建築基準法22条による区域。
備考
前面道路8m 低層エリアの閑静住宅地 LDKと水廻りを1階に集約した使い勝手の良い間取り 陽当り良好
お気軽にどうぞ!
お気に入りに追加済み
loading...