物件種別
新築一戸建て
価格
5,980万円
所在地
川崎市多摩区 宿河原5丁目
交通
南武線「宿河原」駅 徒歩 6 分
土地面積
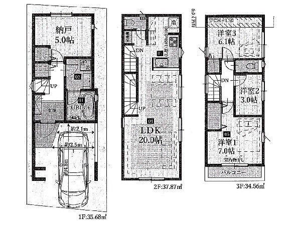
80.87㎡
建物面積
93.05㎡
間取り
2SLDK
前回情報更新日 2025.10.30 | 次回情報更新予定日 2025.11.13
この物件のココがオススメ!
宿河原駅徒歩6分の好立地 緑と自然あふれる住環境 上質な空間とくつろぎが融合した新築一戸建 全9棟
お気軽にどうぞ!
お気に入りに追加済み
お気軽にどうぞ!
お気に入りに追加済み
この物件の月々のお支払額
ボーナス時(年2回)お支払額
年収に対する返済比率
※会員登録し、詳細情報を記入されますと、全ての物件で自動的に金額が表示され、大変便利です。
※まだ会員登録をされていない方は、下記チェック欄をご記入ください。
※上記計算は物件価格 5,980万円+諸経費 8%込みの金額による結果となります。
※返済金額はあくまでも目安です。
会員登録してローン情報を入力しておくと全ての物件に対してローンシミュレーションを表示できます。
会員未登録のお客様
会員登録をして会員情報にシミュレーション条件が未登録のお客様
マイページから会員登録なしでシミュレーションするお客様
幼稚園・保育園
周辺環境:玉幼稚園(豊かな自然に囲まれ、園舎・園庭から子供たちの元気な声が聞こえてきます。できることが増えていく、お子様の成長が楽しみです。)(250m)
小学校
周辺環境:稲田小学校 (「やさしく かしこく たくましく」を目指して子どもたちを地域社会とともに育てていきます。学校の周りにはニヶ領用水や桜並木が広がっています。)(500m)
駅
周辺環境:宿河原駅 (藤子F不二雄ミュージアムの最寄駅なので駅の発車メロディがドラえもんやキテレツ大百科が流れる。マンションよりも一戸建てが多く、のどかで明るい人気駅。)(500m)
ドラッグストア
周辺環境:クリエイトSD川崎宿河原南口店 (豊富な品揃えときめ細やかなサービスのドラッグストア。品質と価値をご提するためのプライベートブランドの商品開発にも力を注いでいます。)(600m)
スーパー
周辺環境:ライフ宿河原店 (スーパーマーケット ライフは、「安全と安心」「鮮度と品質」「信頼とサービス」にこだわっています。 )(800m)
中学校
周辺環境:稲田中学校(昭和22年開校、創立70周年の歴史ある中学校。全校生徒が870人のマンモス校。これだけ子供が多いのは人が集まるエリアを証明しています。)(800m)
お気軽にどうぞ!
お気に入りに追加済み
学区
稲田小学校
稲田中学校
用途地域
第一種住居
地目
宅地
建ぺい率
60%
容積率
200%
駐車場
有り カースペース
接道
西 5.0m
権利
所有権
私道面積
無し
セットバック
無し
建物構造
木造
建物階数
2階
築年月
2025/08
入居日
即時
建築確認番号
第2024SBC-確04017H号
都市計画
市街化区域
取引態様
仲介
物件番号
A1537-3
設備
都市ガス、公営水道、公共下水、駐車場1台、閑静な住宅地、平坦地、都市近郊、地盤調査済、市街地が近い、周辺交通量少なめ、スーパーが近い(10分以内)、駅まで平坦、2沿線以上利用可、小学校徒歩10分以内、保育施設・幼稚園5分以内、公園5分以内、コンビニ5分以内、システムキッチン、ガス3口、対面キッチン、浄水器、パントリー(食器・食品の収納庫)、ユニットバス、追い焚き、浴室乾燥機、ウォシュレット、トイレ2ヶ所、浴室1坪以上、浴室に窓、暖房便座、浴室暖房、バルコニー、南面バルコニー、2階建、LDK15畳以上、採光3面、フローリング、全室フローリング、クローゼット、ウォークインクローゼット、収納、下駄箱、全居室収納、シューズインクローク、シャンプドレッサー付き、年内入居可、モニタ付きインターフォン、複層ガラス、火災警報器(報知機)、通風良好、陽当り良好、24時間換気システム、シューズインクローク、ウォークインクローゼット、対面キッチン、パントリー、都市ガス、建物10年保証
特記事項
景観法:有/宅地造成工事規制区域:有/高度地区:有/準防火地域:有/日影制限:有/高さ限度:有/間取りSは納戸。
備考
宿河原駅徒歩6分の好立地 緑と自然あふれる住環境 上質な空間とくつろぎが融合した新築一戸建 全9棟
お気軽にどうぞ!
お気に入りに追加済み
loading...