物件種別
中古一戸建て
価格
4,490万円
所在地
川崎市麻生区 王禅寺東3丁目
交通
田園都市線「あざみ野」駅 バス停「王禅寺東三丁目」まで 徒歩 2 分 バス利用 13分
土地面積
186.58㎡
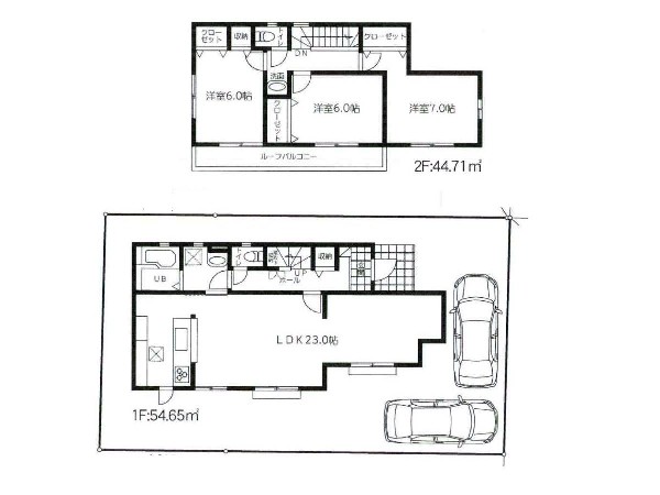
建物面積
89.43㎡
間取り
3LDK
前回情報更新日 2025.12.12 | 次回情報更新予定日 2025.12.26
この物件のココがオススメ!
「新百合ヶ丘」「あざみ野」駅の2駅利用可能 ウッドデッキがあり家庭菜園も可能な広々お庭つきです
お気軽にどうぞ!
お気に入りに追加済み
お気軽にどうぞ!
お気に入りに追加済み
この物件の月々のお支払額
ボーナス時(年2回)お支払額
年収に対する返済比率
※会員登録し、詳細情報を記入されますと、全ての物件で自動的に金額が表示され、大変便利です。
※まだ会員登録をされていない方は、下記チェック欄をご記入ください。
※上記計算は物件価格 4,490万円+諸経費 8%込みの金額による結果となります。
※返済金額はあくまでも目安です。
会員登録してローン情報を入力しておくと全ての物件に対してローンシミュレーションを表示できます。
会員未登録のお客様
会員登録をして会員情報にシミュレーション条件が未登録のお客様
マイページから会員登録なしでシミュレーションするお客様
駅
周辺環境:新百合ヶ丘駅(ショッピングモールや映画館のある駅ビルが立ち並ぶ人気の駅です。区役所等の公共機関も多数集まっており便利です。)(2700m)
小学校
周辺環境:王禅寺中央小学校(一人ひとりの良さを認め 生かし 伸ばす)(700m)
中学校
周辺環境:王禅寺中央中学校(川崎市麻生区の王禅寺中学校と白山中学校が統合されて、平成20年4月に開校した学校です。)(600m)
公園
周辺環境:王禅寺ふるさと公園(多摩丘陵の豊かな自然を生かし、水と緑をテーマとして作られた公園。多目的広場、芝生広場、自然林を生かした散策道、富士山展望広場などあり。)(450m)
病院
周辺環境:たま日吉台病院( 緑に囲まれた中にある病院。在宅サービスがあり、内科、外科、整形外科、皮膚科、脳神経外科、循環器、消化器科などがあります。)(650m)
スーパー
周辺環境:西友新ゆりグリーンタウン店(年中無休で営業しています。新百合ヶ丘駅よりバスにて約10分の距離にあります。)(1700m)
お気軽にどうぞ!
お気に入りに追加済み
学区
王禅寺中央小学校
王禅寺中央中学校
用途地域
第一種低層住居専用
地目
宅地
建ぺい率
40%
容積率
80%
駐車場
有り カースペース
接道
南 4.0m
権利
所有権
私道面積
有 63.52m² 1/2
セットバック
無し
建物構造
木造
建物階数
2階
築年月
2002/04
入居日
相談
都市計画
市街化区域
取引態様
仲介
物件番号
A1613
設備
都市ガス、公営水道、公共下水、駐車場2台以上、緑豊かな住宅地、閑静な住宅地、都市近郊、土地50坪以上、南側道路面す、市街地が近い、周辺交通量少なめ、始発駅、2沿線以上利用可、総合病院徒歩10分以内、小学校徒歩10分以内、中学校徒歩10分以内、公園5分以内、システムキッチン、ガス3口、対面キッチン、ユニットバス、トイレ2ヶ所、浴室1坪以上、浴室に窓、セカンド洗面台、バルコニー、ウッドデッキ、リノベーション、2階建、ロフト、LDK15畳以上、照明器具付き、採光2面、南向き、全室2面採光、リビング階段、クローゼット、収納、下駄箱、納戸、庭、陽当り良好、対面キッチン、都市ガス
特記事項
不整形地:有/壁面後退:有/景観法:有/宅地造成工事規制区域:有/高度地区:有/日影制限:有/敷地面積最低限度:有/高さ限度:有/土地面積に路地状部分約26.5平米含む 駐車は車種により2台可 建築基準法第22条による区域。 /リノベーション…2025年07月(床、壁、浴室、キッチン、洗面、給湯器、照明、インターホン、スイッチ、分電盤交換等) 外装リフォーム…2025年07月(外壁、外構、ウッドデッキ)
備考
「新百合ヶ丘」「あざみ野」駅の2駅利用可能 ウッドデッキがあり家庭菜園も可能な広々お庭つきです
お気軽にどうぞ!
お気に入りに追加済み
loading...