物件種別
新築一戸建て
価格
3,980万円
所在地
横浜市都筑区 大棚町
交通
グリーンライン「東山田」駅 徒歩 12 分
ブルーライン「センター北」駅 徒歩 26 分
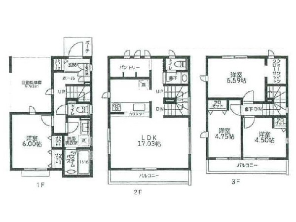
土地面積
69.00㎡
建物面積
64.16㎡
間取り
2LDK
前回情報更新日 2025.12.12 | 次回情報更新予定日 2025.12.26
この物件のココがオススメ!
「東山田」駅まで平坦徒歩圏内の緑豊かな住宅地 使いやすいL型キッチンの新築2階建 省エネ仕様のお住まいです
お気軽にどうぞ!
お気に入りに追加済み
お気軽にどうぞ!
お気に入りに追加済み
この物件の月々のお支払額
ボーナス時(年2回)お支払額
年収に対する返済比率
※会員登録し、詳細情報を記入されますと、全ての物件で自動的に金額が表示され、大変便利です。
※まだ会員登録をされていない方は、下記チェック欄をご記入ください。
※上記計算は物件価格 3,980万円+諸経費 8%込みの金額による結果となります。
※返済金額はあくまでも目安です。
会員登録してローン情報を入力しておくと全ての物件に対してローンシミュレーションを表示できます。
会員未登録のお客様
会員登録をして会員情報にシミュレーション条件が未登録のお客様
マイページから会員登録なしでシミュレーションするお客様
駅
周辺環境:東山田駅(一日平均1万人の乗降者数がある駅。2008年にグリーンライン開通と共にできた新駅。)(900m)
スーパー
周辺環境:オーケー北山田店(品質の良い商品の中から、価値のある商品・美味しい商品・鮮度の良い商品・健康に良い商品・便利な商品を慎重に選んで販売しています。)(1600m)
ショッピングセンター
周辺環境:モザイクモール港北(モザイクモールをはじめ、その周辺には多数のショッピングモールがございます。休日にいかがですか)(2100m)
幼稚園・保育園
周辺環境:港北幼稚園(お子さんの人生の豊かな始まりを、全面的に支えていきます。新たなお子さんの可能性を一緒に発見し、育てていきましょう。)(800m)
小学校
周辺環境:中川小学校(人・自然・まちとふれあいながら、自分を高める中川の子)(1000m)
お気軽にどうぞ!
お気に入りに追加済み
学区
中川小学校
中川中学校
用途地域
無指
地目
宅地
建ぺい率
50%
容積率
80%
駐車場
有り ビルトイン車庫
接道
西 4.0m
権利
所有権
私道面積
有 12.12m² 43/1212
セットバック
無し
建物構造
木造
建物階数
2階
築年月
2026/03
入居日
2026/04
建築確認番号
第2025SDC-確00701Y号
都市計画
市街化調整区域
取引態様
仲介
物件番号
A1587
設備
公営水道、公共下水、緑豊かな住宅地、閑静な住宅地、都市近郊、市街地が近い、2沿線以上利用可、中学校徒歩10分以内、保育施設・幼稚園5分以内、公園5分以内、コンビニ5分以内、シューズインクローク、整形地、システムキッチン、ガス3口、L型キッチン、食器洗い機付き、浄水器、ユニットバス、追い焚き、浴室乾燥機、浴室に窓、暖房便座、浴室暖房、バルコニー、2階建、省エネ給湯器、採光3面、全室2面採光、東南向き、全室東南向き、クローゼット、下駄箱、全居室収納、シューズインクローク、シャンプドレッサー付き、通風良好、24時間換気システム、建物10年保証
特記事項
宅地造成工事規制区域:有/日影制限:有/建築基準法第22条による区域 接道:43条但書道路につき但書許可要(建築確認取得済)。 /市街化調整区域(建築許可:都市計画法施行令36条1項3号に該当)
備考
「東山田」駅まで平坦徒歩圏内の緑豊かな住宅地 使いやすいL型キッチンの新築2階建 省エネ仕様のお住まいです
お気軽にどうぞ!
お気に入りに追加済み
loading...