物件種別
新築一戸建て
価格
5,580万円
所在地
横浜市港北区 小机町
交通
横浜線「小机」駅 徒歩 12 分
ブルーライン「片倉町」駅 徒歩 26 分
土地面積
240.39㎡
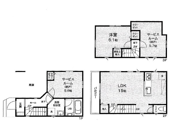
建物面積
117.58㎡
間取り
4SLDK
前回情報更新日 2025.12.16 | 次回情報更新予定日 2025.12.30
この物件のココがオススメ!
小机駅徒歩圏 制震ダンパーや浴室TVなど暮らしを彩る充実の設備 WICやパントリー等収納豊富 ロフト付
お気軽にどうぞ!
お気に入りに追加済み
お気軽にどうぞ!
お気に入りに追加済み
この物件の月々のお支払額
ボーナス時(年2回)お支払額
年収に対する返済比率
※会員登録し、詳細情報を記入されますと、全ての物件で自動的に金額が表示され、大変便利です。
※まだ会員登録をされていない方は、下記チェック欄をご記入ください。
※上記計算は物件価格 5,580万円+諸経費 8%込みの金額による結果となります。
※返済金額はあくまでも目安です。
会員登録してローン情報を入力しておくと全ての物件に対してローンシミュレーションを表示できます。
会員未登録のお客様
会員登録をして会員情報にシミュレーション条件が未登録のお客様
マイページから会員登録なしでシミュレーションするお客様
スーパー
周辺環境:Fuji鳥山店(生鮮品は品質・鮮度にこだわり、豊富な品揃えでお客様に喜んでいただけるよう心がけております喜んでいただけるよう心がけております。)(550m)
スーパー
周辺環境:FUJI菅田店(営業時間7~22時 駐車場約20台 品質はもちろん、安心・安全を第一に考えた価値ある商品など、数多く取り揃えております。)(850m)
ドラッグストア
周辺環境:Fit Care DEPOT菅田店(【営業時間】10:00~21:00 ウィークリー・ニーズの商品を提供するスーパードラッグストアを展開してまいります。)(800m)
その他環境写真
周辺環境:ニトリ新横浜店(お値段以上の商品を提供する家具屋さん。ソファーをはじめ家具が有名ですが、お皿、茶碗、マットなど、引越しに伴う日用品はすべて揃う。)(1600m)
中学校
周辺環境:城郷中学校(昭和22年開校で生徒数は700名を超える。近隣の中学校と比較しても生徒数は多い。部活が盛んで各種様々練習が常に賑わっている。)(1100m)
小学校
周辺環境:小机小学校(学校教育目標は、「心豊かに学び合い、ともに伸びる子」。)(550m)
幼稚園・保育園
周辺環境:保育園こりす(延長保育、一時保育、子育て支援などを通し、地域のニーズに応え、愛される保育を目指してまいります。)(1000m)
病院
周辺環境:医療法人ワンアンドオンリー新横浜母と子の病院(「安全・安心・快適」なご出産に誠心誠意取り組んでおります。当院でのご出産は、24時間・365日。必ず産婦人科専門医が立会います。)(1100m)
ショッピングセンター
周辺環境:キュービックプラザ新横浜(新横浜駅直結。1階から10階まで、レストラン・フード・ファッションなどバラエティに富んだお店が65店舗。)(2000m)
お気軽にどうぞ!
お気に入りに追加済み
学区
小机小学校
城郷中学校
用途地域
第一種低層住居専用
地目
宅地
建ぺい率
50%
容積率
80%
駐車場
有り カースペース
接道
北東 4.0m
権利
所有権
私道面積
有 4.81m²
セットバック
無し
建物構造
木造
建物階数
2階
築年月
2025/09
入居日
即時
建築確認番号
第24UDI1K建01337-2号
都市計画
市街化区域
取引態様
仲介
物件番号
A1636
設備
都市ガス、公営水道、公共下水、防犯シャッター、省エネルギー対策、駐車場2台以上、緑豊かな住宅地、閑静な住宅地、都市近郊、地盤調査済、土地50坪以上、市街地が近い、周辺交通量少なめ、スーパーが近い(10分以内)、2沿線以上利用可、小学校徒歩10分以内、システムキッチン、ガス3口、カウンタキッチン、対面キッチン、食器洗い機付き、浄水器、パントリー(食器・食品の収納庫)、ユニットバス、追い焚き、浴室乾燥機、ウォシュレット、オートバス付き、トイレ2ヶ所、TV付浴室、浴室1坪以上、浴室に窓、高機能トイレ、暖房便座、セカンド洗面台、バルコニー、テラス、南面バルコニー、2階建、ロフト、LDK15畳以上、省エネ給湯器、採光3面、全室南東向き、全室2面採光、フローリング、全室フローリング、スマートキー、クローゼット、ウォークインクローゼット、収納、床下収納、下駄箱、屋根裏収納、全居室収納、洗面室収納、シャンプドレッサー付き、庭、庭10坪以上、年内入居可、モニタ付きインターフォン、複層ガラス、火災警報器(報知機)、全居室複層ガラスか複層サッシ、セキュリティ充実、通風良好、陽当り良好、眺望良好、24時間換気システム、ウォークインクローゼット、対面キッチン、パントリー、都市ガス、建物10年保証、勾配天井
特記事項
崖上につき建築制限:有/不整形地:有/壁面後退:有/宅地造成工事規制区域:有/高度地区:有/日影制限:有/敷地内段差:有/敷地面積最低限度:有/高さ限度:有/緑化地域、建築基準法第22条区域、間取りSは納戸、駐車は車種により2台可。
備考
小机駅徒歩圏 制震ダンパーや浴室TVなど暮らしを彩る充実の設備 WICやパントリー等収納豊富 ロフト付
お気軽にどうぞ!
お気に入りに追加済み
loading...