物件種別
新築一戸建て
価格
5,380万円
所在地
横浜市青葉区 下谷本町
交通
田園都市線「市が尾」駅 徒歩 12 分
田園都市線「藤が丘」駅 徒歩 13 分
土地面積
51.49㎡
建物面積
89.19㎡
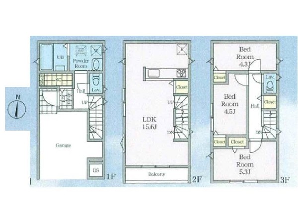
間取り
3LDK
前回情報更新日 2025.11.28 | 次回情報更新予定日 2025.12.12
この物件のココがオススメ!
市が尾駅徒歩12分 南側道路で日当たり良好 トップランナー基準対応住宅 省エネ給湯器や食洗機など設備充実
お気軽にどうぞ!
お気に入りに追加済み
お気軽にどうぞ!
お気に入りに追加済み
この物件の月々のお支払額
ボーナス時(年2回)お支払額
年収に対する返済比率
※会員登録し、詳細情報を記入されますと、全ての物件で自動的に金額が表示され、大変便利です。
※まだ会員登録をされていない方は、下記チェック欄をご記入ください。
※上記計算は物件価格 5,380万円+諸経費 8%込みの金額による結果となります。
※返済金額はあくまでも目安です。
会員登録してローン情報を入力しておくと全ての物件に対してローンシミュレーションを表示できます。
会員未登録のお客様
会員登録をして会員情報にシミュレーション条件が未登録のお客様
マイページから会員登録なしでシミュレーションするお客様
スーパー
周辺環境:西友市ヶ尾店(言わずと知れた低価格が売りのスーパー。「お客さまに低価格で価値あるお買物の機会を提供し、より豊かな生活の実現に寄与する」 の実現を目指します)(750m)
スーパー
周辺環境:東急ストア 藤が丘店(藤が丘駅前にあるスーパー。営業時間は9時~23時までと幅広い時間帯に利用することができ、お客様の毎日の生活に密着してお役に立ちます。)(900m)
小学校
周辺環境:谷本小学校(創立明治6年。学校教育目標『やってみよう 自分から もっと生かそう 学んだことを ともに生きよう 感謝の心で』)(650m)
病院
周辺環境:昭和大学藤が丘病院(「まごころ」を尽くし、医療の質・安全の向上、患者本位の医療、地域への貢献、医療人の育成という目標を達成します。)(750m)
役所
周辺環境:青葉区役所(引越しや出産、検診、保育園の入園、年金、税金、各種手続き等々、節目で必ず行く必要がある区役所。)(1000m)
中学校
周辺環境:谷本中学校(昭和22年創立で70周年以上の歴史ある中学校。各学年6~7クラスあり、総生徒数約720人の大規模な中学校。)(1900m)
お気軽にどうぞ!
お気に入りに追加済み
学区
谷本小学校
谷本中学校
用途地域
第一種住居
地目
宅地
建ぺい率
60%
容積率
200%
駐車場
有り ビルトイン車庫
接道
南 5.9m
権利
所有権
私道面積
無し
セットバック
無し
建物構造
木造
建物階数
3階
築年月
2025/12
入居日
2026/01
建築確認番号
第2025SBC-確00481Y号
都市計画
市街化区域
取引態様
仲介
物件番号
A1701-B
設備
都市ガス、公営水道、公共下水、シックハウス対策、ビルトインガレージ、閑静な住宅地、都市近郊、地盤調査済、南側道路面す、市街地が近い、スーパーが近い(10分以内)、総合病院徒歩10分以内、小学校徒歩10分以内、対面キッチン、都市ガス、眺望良好、システムキッチン、ガス3口、対面キッチン、食器洗い機付き、浄水器、ユニットバス、追い焚き、浴室乾燥機、ウォシュレット、オートバス付き、トイレ2ヶ所、浴室1坪以上、浴室に窓、暖房便座、バルコニー、南面バルコニー、3階建以上、LDK15畳以上、省エネ給湯器、採光2面、南向き、リビング階段、クローゼット、収納、下駄箱、全居室収納、シャンプドレッサー付き、フラット35Sに対応、モニタ付きインターフォン、複層ガラス、火災警報器(報知機)、陽当り良好、24時間換気システム、建物10年保証
特記事項
宅地造成工事規制区域:有/高度地区:有/準防火地域:有/日影制限:有/高さ限度:有/緑化地域、建物面積にバルコニー面積3.72平米含む。
備考
市が尾駅徒歩12分 南側道路で日当たり良好 トップランナー基準対応住宅 省エネ給湯器や食洗機など設備充実
お気軽にどうぞ!
お気に入りに追加済み
loading...