物件種別
新築一戸建て
価格
5,180万円
所在地
川崎市宮前区 西野川3丁目
交通
田園都市線「宮前平」駅 バス停「野川台東」まで 徒歩 1 分 バス利用 12分
南武線「武蔵中原」駅 バス停「野川台」まで 徒歩 4 分 バス利用 16分
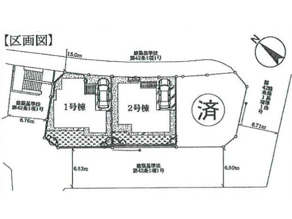
土地面積
128.33㎡
建物面積
106.40㎡
間取り
3LDK
前回情報更新日 2026.01.09 | 次回情報更新予定日 2026.01.23
この物件のココがオススメ!
「宮前平」駅 バス停まで1分 畳コーナーのある落ち着いたリビング 太陽光パネルつき新築全3棟が誕生です
お気軽にどうぞ!
お気に入りに追加済み
お気軽にどうぞ!
お気に入りに追加済み
この物件の月々のお支払額
ボーナス時(年2回)お支払額
年収に対する返済比率
※会員登録し、詳細情報を記入されますと、全ての物件で自動的に金額が表示され、大変便利です。
※まだ会員登録をされていない方は、下記チェック欄をご記入ください。
※上記計算は物件価格 5,180万円+諸経費 8%込みの金額による結果となります。
※返済金額はあくまでも目安です。
会員登録してローン情報を入力しておくと全ての物件に対してローンシミュレーションを表示できます。
会員未登録のお客様
会員登録をして会員情報にシミュレーション条件が未登録のお客様
マイページから会員登録なしでシミュレーションするお客様
小学校
周辺環境:野川小学校(明治6年創立で約155年の歴史がある学校。総生徒数約780人で各学年120~130人。)(550m)
中学校
周辺環境:野川中学校(自己の将来を思慮しながら、自主的、創造的に活動する生徒の育成を目指します。)(300m)
公園
周辺環境:野川第二公園(青空の下で駆け回ったり、遊具で遊んだり、思い思いの遊びができます。子供たちの元気で楽しそうな声が響き渡ります。)(210m)
コンビニ
周辺環境:セブンイレブン野川台店(セブンミールは大好評です。今や公共料金の支払いや宅配など、色々な用途があるコンビニは必須ですね。)(300m)
スーパー
周辺環境:ヨークマート川崎野川店(セブン&アイ・ホールディングス傘下のイトーヨーカ堂が関東南部に展開する日本のスーパーマーケットです。)(900m)
病院
周辺環境:こども元気!内科クリニック(おしゃれで楽しい小児科クリニックです。隣に専用の健診・ワクチンセンターを併設しております。)(900m)
お気軽にどうぞ!
お気に入りに追加済み
学区
野川小学校
野川中学校
用途地域
第二種低層住居専用
地目
宅地
建ぺい率
50%
容積率
100%
駐車場
有り カースペース
接道
北東 16.0m 北西 6.7m 南西 6.5m
権利
所有権
私道面積
無し
セットバック
無し
建物構造
木造
建物階数
2階
築年月
2026/03
入居日
2026/04
建築確認番号
第KS125-3820-50285号
都市計画
市街化区域
取引態様
仲介
物件番号
A1772-1
設備
都市ガス、公営水道、公共下水、耐震構造、駐車場1台、高台に立地、角地、都市近郊、地盤調査済、南側道路面す、前道6m以上、市街地が近い、2沿線以上利用可、小学校徒歩10分以内、中学校徒歩10分以内、公園5分以内、コンビニ5分以内、システムキッチン、ガス3口、対面キッチン、L型キッチン、浄水器、ユニットバス、追い焚き、浴室乾燥機、ウォシュレット、トイレ2ヶ所、浴室に窓、暖房便座、バルコニー、テラス、南面バルコニー、2階建、LDK15畳以上、全居室6畳以上、グルニエ、太陽光発電システム、採光3面、全室2面採光、南西向き、クローゼット、ウォークインクローゼット、収納、床下収納、下駄箱、屋根裏収納、全居室収納、洗面室収納、シャンプドレッサー付き、フラット35Sに対応、モニタ付きインターフォン、複層ガラス、火災警報器(報知機)、通風良好、陽当り良好、24時間換気システム、ウォークインクローゼット、対面キッチン、都市ガス、建物10年保証
特記事項
建築基準法第22条による区域 再建築の際は擁壁側にRC造りの防護壁を設ける必要があります/崖上につき建築制限:有/隅切り:有/壁面後退:有/景観法:有/宅地造成工事規制区域:有/高度地区:有/日影制限:有/敷地面積最低限度:有/高さ限度:有。
備考
「宮前平」駅 バス停まで1分 畳コーナーのある落ち着いたリビング 太陽光パネルつき新築全3棟が誕生です
お気軽にどうぞ!
お気に入りに追加済み
loading...