物件種別
新築一戸建て
価格
4,880万円
所在地
川崎市多摩区 西生田5丁目
土地面積
129.08㎡
建物面積
99.78㎡
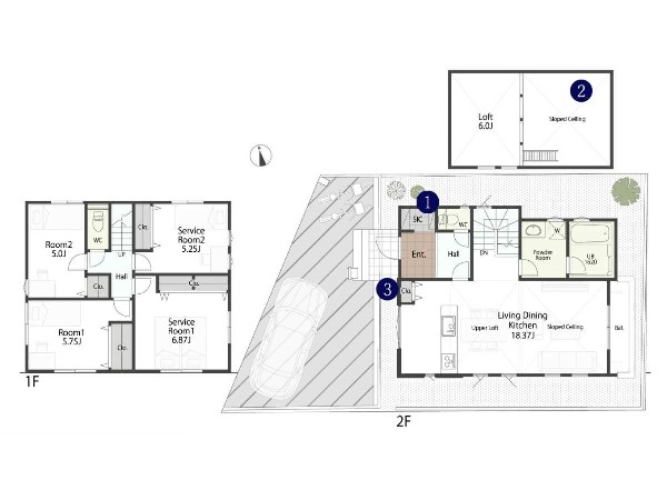
間取り
2LDK+2S
前回情報更新日 2026.04.02 | 次回情報更新予定日 2026.04.16
この物件のココがオススメ!
開放感が魅力の邸宅 家族とのコミュニケーションの取りやすいペニンシュラキッチン 収納豊富なロフト付
お気軽にどうぞ!
お気に入りに追加済み
お気軽にどうぞ!
お気に入りに追加済み
この物件の月々のお支払額
ボーナス時(年2回)お支払額
年収に対する返済比率
※会員登録し、詳細情報を記入されますと、全ての物件で自動的に金額が表示され、大変便利です。
※まだ会員登録をされていない方は、下記チェック欄をご記入ください。
※上記計算は物件価格 4,880万円+諸経費 8%込みの金額による結果となります。
※返済金額はあくまでも目安です。
会員登録してローン情報を入力しておくと全ての物件に対してローンシミュレーションを表示できます。
会員未登録のお客様
会員登録をして会員情報にシミュレーション条件が未登録のお客様
マイページから会員登録なしでシミュレーションするお客様
公園
周辺環境:南生田公園(午前は小さな子どもやお母さんたち、午後は小学生たちでにぎやかな公園です。遊具広場、野球場、テニスコートもあります。)(1100m)
スーパー
周辺環境:Odakyu OX読売ランド店(Odakyu OXは小田急商事株式会社が展開するこだわりのスーパーマーケット。都市型スーパーマーケットとして、「上質」と「感動」をみなさまへ。)(1000m)
スーパー
周辺環境:sanwa百合ヶ丘店食品館(食べ盛りのお子様がいらっしゃるご家庭の強い味方、魅力の量・価格のスーパーが近くにあると、とても心強いです。)(1300m)
小学校
周辺環境:南生田小学校(平成28年に、創立40周年を迎えました。本校では、「心豊かで自らよく学び、たくましく活躍できる子どもの育成」を目指しています。)(1300m)
中学校
周辺環境:南生田中学校(成長の過程でより濃い時間を過ごす3年間。お子様にとって、とても大切な思い出となるはずです。)(1300m)
その他環境写真
周辺環境:西松屋(子どもを持つ親ならだれもが足を運んだことがあるベビーキッズ用品専門店。衣料品、おむつ、離乳食、ベビーカー等育児用品全般が揃います。)(1800m)
お気軽にどうぞ!
お気に入りに追加済み
学区
南生田小学校
南生田中学校
用途地域
第一種低層住居専用
地目
宅地
建ぺい率
50%
容積率
100%
駐車場
有り カースペース
接道
北西 3.7m
権利
所有権
私道面積
有 5.65m²
セットバック
無し
建物構造
木造
建物階数
2階
築年月
2026/06
入居日
2026/06
建築確認番号
25UDI1K建01980
都市計画
市街化区域
取引態様
仲介
物件番号
A1978
設備
都市ガス、公営水道、公共下水、吹き抜け、省エネルギー対策、駐車場1台、高台に立地、緑豊かな住宅地、閑静な住宅地、都市近郊、地盤調査済、市街地が近い、周辺交通量少なめ、公園5分以内、シューズインクローク、対面キッチン、パントリー、都市ガス、眺望良好、システムキッチン、ガスコンロ、ガス3口、カウンタキッチン、対面キッチン、食器洗い機付き、浄水器、パントリー(食器・食品の収納庫)、ユニットバス、追い焚き、浴室乾燥機、ウォシュレット、オートバス付き、トイレ2ヶ所、浴室1坪以上、浴室に窓、高機能トイレ、暖房便座、浴室暖房、バルコニー、2階建、ロフト、LDK18畳以上、省エネ給湯器、採光3面、全室2面採光、フローリング、全室フローリング、天井高2.5m以上、リビング階段、スマートキー、クローゼット、収納、下駄箱、全居室収納、シューズインクローク、シャンプドレッサー付き、モニタ付きインターフォン、複層ガラス、火災警報器(報知機)、全居室複層ガラスか複層サッシ、セキュリティ充実、通風良好、陽当り良好、24時間換気システム、建物10年保証
特記事項
崖下につき建築制限:有/崖上につき建築制限:有/壁面後退:有/景観法:有/宅地造成工事規制区域:有/高度地区:有/日影制限:有/一部都市計画道路:有/敷地内段差:有/敷地面積最低限度:有/高さ限度:有/建築基準法22条区域、間取Sは納戸。
備考
開放感が魅力の邸宅 家族とのコミュニケーションの取りやすいペニンシュラキッチン 収納豊富なロフト付
お気軽にどうぞ!
お気に入りに追加済み
loading...