物件種別
新築一戸建て
価格
6,680万円
所在地
横浜市港北区 新吉田東7丁目
交通
ブルーライン「新羽」駅 徒歩 15 分
東急東横線「綱島」駅 バス停「新吉田小学校南」まで 徒歩 3 分 バス利用 7分
土地面積
89.69㎡
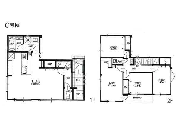
建物面積
89.01㎡
間取り
2SLDK
前回情報更新日 2026.01.30 | 次回情報更新予定日 2026.02.13
この物件のココがオススメ!
「新羽」駅徒歩圏内完成で自然豊かなロケーション 柔らかで温かみのあるナチュラルモダンの外観
お気軽にどうぞ!
お気に入りに追加済み
お気軽にどうぞ!
お気に入りに追加済み
この物件の月々のお支払額
ボーナス時(年2回)お支払額
年収に対する返済比率
※会員登録し、詳細情報を記入されますと、全ての物件で自動的に金額が表示され、大変便利です。
※まだ会員登録をされていない方は、下記チェック欄をご記入ください。
※上記計算は物件価格 6,680万円+諸経費 8%込みの金額による結果となります。
※返済金額はあくまでも目安です。
会員登録してローン情報を入力しておくと全ての物件に対してローンシミュレーションを表示できます。
会員未登録のお客様
会員登録をして会員情報にシミュレーション条件が未登録のお客様
マイページから会員登録なしでシミュレーションするお客様
駅
周辺環境:新羽駅(駅周辺地区は、横浜市における都心の一つである「新横浜都心」に指定されている。)(1100m)
ショッピングセンター
周辺環境:イオン横浜新吉田店(食料品だけでなく衣料品、日用雑貨、ドラッグストア等も揃う便利なショッピングモール。ご家族でお買い物に出かけるのも楽しいですね。)(550m)
小学校
周辺環境:新吉田小学校(【知】確かな学力 【徳】豊かな心【体】健やかな体【公】公共心と社会参画意識【開】国際社会に寄与する開かれた心)(450m)
公園
周辺環境:東前公園(公園全体に遊具を配置した公園。すべり台、ブランコ、砂場、鉄棒がある。)(1000m)
中学校
周辺環境:新田中学校(学校教育目標は「たのしい新田」 昭和22年に設立 全校生徒約720人の中学校です!)(1100m)
お気軽にどうぞ!
お気に入りに追加済み
学区
新吉田小学校
新田中学校
用途地域
第一種低層住居専用
地目
宅地
建ぺい率
60%
容積率
100%
駐車場
有り カースペース
接道
北 4.5m
権利
所有権
私道面積
有 22.94m² 1/1
セットバック
無し
建物構造
木造
建物階数
2階
築年月
2026/03
入居日
2026/04
建築確認番号
第KBI-YKH25-10-2897号
都市計画
市街化区域
取引態様
仲介
物件番号
A2112
設備
都市ガス、公営水道、公共下水、吹き抜け、駐車場1台、整形地、緑豊かな住宅地、閑静な住宅地、平坦地、都市近郊、地盤調査済、市街地が近い、田園風景、周辺交通量少なめ、スーパーが近い(10分以内)、駅まで平坦、2沿線以上利用可、小学校徒歩10分以内、公園5分以内、コンビニ5分以内、対面キッチン、パントリー、都市ガス、整形地、システムキッチン、ガス3口、対面キッチン、食器洗い機付き、浄水器、I型キッチン、パントリー(食器・食品の収納庫)、ユニットバス、追い焚き、浴室乾燥機、ウォシュレット、トイレ2ヶ所、浴室1坪以上、浴室に窓、暖房便座、浴室暖房、バルコニー、ワイドバルコニー、南面バルコニー、2階建、LDK18畳以上、照明器具付き、南向き、全室2面採光、フローリング、リビング階段、クローゼット、収納、下駄箱、全居室収納、シャンプドレッサー付き、モニタ付きインターフォン、複層ガラス、火災警報器(報知機)、陽当り良好、24時間換気システム、建物10年保証
特記事項
宅地造成工事規制区域:有/高度地区:有/準防火地域:有/日影制限:有/敷地面積最低限度:有/高さ限度:有/緑化地域 間取りSは納戸 私道通行掘削承諾有。
備考
「新羽」駅徒歩圏内完成で自然豊かなロケーション 柔らかで温かみのあるナチュラルモダンの外観
お気軽にどうぞ!
お気に入りに追加済み
loading...