物件種別
新築一戸建て
価格
7,280万円
所在地
横浜市港北区 篠原東3丁目
交通
ブルーライン「新横浜」駅 徒歩 14 分
東急東横線「妙蓮寺」駅 徒歩 13 分
土地面積
116.58㎡
建物面積
90.04㎡
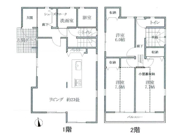
間取り
3LDK
前回情報更新日 2026.03.27 | 次回情報更新予定日 2026.04.10
この物件のココがオススメ!
ターミナル駅「新横浜」駅徒歩圏内の住宅地 お庭のある3LDKです 広いWic、Sic等収納豊富な2階建
お気軽にどうぞ!
お気に入りに追加済み
お気軽にどうぞ!
お気に入りに追加済み
この物件の月々のお支払額
ボーナス時(年2回)お支払額
年収に対する返済比率
※会員登録し、詳細情報を記入されますと、全ての物件で自動的に金額が表示され、大変便利です。
※まだ会員登録をされていない方は、下記チェック欄をご記入ください。
※上記計算は物件価格 7,280万円+諸経費 8%込みの金額による結果となります。
※返済金額はあくまでも目安です。
会員登録してローン情報を入力しておくと全ての物件に対してローンシミュレーションを表示できます。
会員未登録のお客様
会員登録をして会員情報にシミュレーション条件が未登録のお客様
マイページから会員登録なしでシミュレーションするお客様
駅
周辺環境:新横浜駅(JR横浜線・ブルーラインが交差する。更には横浜市の新幹線における玄関口の駅。出張や、帰省には大変便利な駅。横浜アリーナ、日産スタジアム等イベントが多い。)(1300m)
公園
周辺環境:菊名池公園(妙蓮寺駅徒歩3分の、池を囲んだのどかな公園です。春には桜が楽しめ、夏にはプールが賑わっています。)(900m)
小学校
周辺環境:篠原小学校(昭和36年創立、各学年3クラス、総児童数600人の小学校。思いやりの心、感謝の気持ち、挨拶、笑顔が特徴の評判が良い学校。)(350m)
中学校
周辺環境:篠原中学校(緑豊かな高台に位置するため、新横浜駅まですぐそこという立地でありながら閑静で自然いっぱいの中学校です。)(750m)
病院
周辺環境:中野こどもクリニック(お子様専門の病院。小児科、アレルギー外来、ひよこ外来、予防接種、乳幼児健診)(800m)
スーパー
周辺環境:オーケーストア妙蓮寺店(品質の良い商品の中から、価値のある商品・美味しい商品・鮮度の良い商品・健康に良い商品・便利な商品を慎重に選んで販売しています。)(950m)
お気軽にどうぞ!
お気に入りに追加済み
学区
篠原小学校
篠原中学校
用途地域
第一種低層住居専用
地目
宅地
建ぺい率
40%
容積率
80%
駐車場
有り カースペース
接道
北 4.5m
権利
所有権
私道面積
無し
セットバック
無し
建物構造
木造
建物階数
2階
築年月
2026/05
入居日
2026/06
建築確認番号
第25KAK建確01824号
都市計画
市街化区域
取引態様
仲介
物件番号
A2132
設備
都市ガス、公営水道、公共下水、駐車場1台、閑静な住宅地、都市近郊、地盤調査済、市街地が近い、周辺交通量少なめ、2沿線以上利用可、小学校徒歩10分以内、中学校徒歩10分以内、保育施設・幼稚園5分以内、公園5分以内、システムキッチン、ガス3口、対面キッチン、食器洗い機付き、浄水器、I型キッチン、ユニットバス、追い焚き、浴室乾燥機、ウォシュレット、トイレ2ヶ所、浴室1坪以上、浴室に窓、暖房便座、バルコニー、南面バルコニー、2階建、LDK15畳以上、省エネ給湯器、採光3面、南向き、全室2面採光、クローゼット、ウォークインクローゼット、収納、下駄箱、全居室収納、シューズインクローク、シャンプドレッサー付き、南庭、庭、モニタ付きインターフォン、複層ガラス、火災警報器(報知機)、通風良好、陽当り良好、24時間換気システム、シューズインクローク、ウォークインクローゼット、対面キッチン、都市ガス、建物10年保証
特記事項
壁面後退:有/宅地造成工事規制区域:有/高度地区:有/日影制限:有/敷地面積最低限度:有/高さ限度:有/建築基準法第22条による区域。
備考
ターミナル駅「新横浜」駅徒歩圏内の住宅地 お庭のある3LDKです 広いWic、Sic等収納豊富な2階建
お気軽にどうぞ!
お気に入りに追加済み
loading...