物件種別
新築一戸建て
価格
4,480万円
所在地
横浜市港北区 小机町
交通
横浜線「小机」駅 徒歩 20 分
東急新横浜線「新横浜」駅 バス停「住吉神社前」まで 徒歩 2 分 バス利用 12分
土地面積
97.40㎡
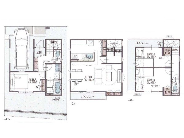
建物面積
105.56㎡
間取り
3LDK
前回情報更新日 2026.02.10 | 次回情報更新予定日 2026.02.24
この物件のココがオススメ!
「小机」駅徒歩20分 全22区画の大型分譲地 2階リビングでプライバシー確保 耐震、防犯に優れています
お気軽にどうぞ!
お気に入りに追加済み
お気軽にどうぞ!
お気に入りに追加済み
この物件の月々のお支払額
ボーナス時(年2回)お支払額
年収に対する返済比率
※会員登録し、詳細情報を記入されますと、全ての物件で自動的に金額が表示され、大変便利です。
※まだ会員登録をされていない方は、下記チェック欄をご記入ください。
※上記計算は物件価格 4,480万円+諸経費 8%込みの金額による結果となります。
※返済金額はあくまでも目安です。
会員登録してローン情報を入力しておくと全ての物件に対してローンシミュレーションを表示できます。
会員未登録のお客様
会員登録をして会員情報にシミュレーション条件が未登録のお客様
マイページから会員登録なしでシミュレーションするお客様
駅
周辺環境:小机駅(横浜国際総合競技場(命名権により日産スタジアム)の開場と同年の1998年に現在の橋上駅舎が完成しました。)(1500m)
小学校
周辺環境:小机小学校(学校教育目標は、「心豊かに学び合い、ともに伸びる子」。)(1500m)
中学校
周辺環境:城郷中学校(昭和22年開校で生徒数は700名を超える。近隣の中学校と比較しても生徒数は多い。部活が盛んで各種様々練習が常に賑わっている。)(1100m)
ショッピングセンター
周辺環境:ららぽーと横浜(買物や食事だけではなく、映画館、クリニックなども入り、家族で1日過ごせる大型商業施設です。イベントの開催も多く、楽しみ方は広がります。)(2000m)
周辺の街並み
周辺環境:日産スタジアム(横浜Fマリノスのホームとして、また、2002年W杯サッカーの試合会場としても注目を集めたスタジアム。)(2200m)
病院
周辺環境:新横浜母と子の病院(「安全・安心・快適」なご出産に誠心誠意取り組んでおります。当院でのご出産は、24時間・365日。必ず産婦人科専門医が立会います。)(2300m)
お気軽にどうぞ!
お気に入りに追加済み
学区
小机小学校
城郷中学校
用途地域
第二種住居
地目
宅地
建ぺい率
60%
容積率
200%
駐車場
有り カースペース
接道
北西 5.5m
権利
所有権
私道面積
無し
セットバック
無し
建物構造
木造
建物階数
3階
築年月
2025/09
入居日
2026/02
都市計画
市街化区域
取引態様
仲介
物件番号
A2121-11
設備
都市ガス、公営水道、公共下水、宅配ロッカー、省エネルギー対策、耐震構造、ビルトインガレージ、駐車場1台、閑静な住宅地、平坦地、都市近郊、開発分譲地内、地盤調査済、市街地が近い、周辺交通量少なめ、スーパーが近い(10分以内)、2沿線以上利用可、保育施設・幼稚園5分以内、公園5分以内、コンビニ5分以内、ウォークインクローゼット、対面キッチン、パントリー、都市ガス、システムキッチン、ガス3口、対面キッチン、L型キッチン、食器洗い機付き、浄水器、パントリー(食器・食品の収納庫)、ユニットバス、追い焚き、浴室乾燥機、ウォシュレット、トイレ2ヶ所、浴室に窓、暖房便座、浴室暖房、バルコニー、バルコニー3面、南面バルコニー、バルコニー・屋上に水栓あり、3階建以上、LDK18畳以上、全居室6畳以上、照明器具付き、省エネ給湯器、採光3面、全室2面採光、南西向き、フローリング、全室フローリング、リビング階段、スマートキー、クローゼット、ウォークインクローゼット、収納、下駄箱、全居室収納、洗面室収納、シャンプドレッサー付き、フラット35Sに対応、年度内入居可、モニタ付きインターフォン、複層ガラス、防犯用ガラス、火災警報器(報知機)、全居室複層ガラスか複層サッシ、通風良好、陽当り良好、24時間換気システム、建物10年保証
特記事項
文化財保護法:有/宅地造成工事規制区域:有/高度地区:有/準防火地域:有/日影制限:有/緑化地域。
備考
「小机」駅徒歩20分 全22区画の大型分譲地 2階リビングでプライバシー確保 耐震、防犯に優れています
お気軽にどうぞ!
お気に入りに追加済み
loading...