物件種別
新築一戸建て
価格
5,080万円
所在地
川崎市幸区 小倉3丁目
交通
南武線「矢向」駅 徒歩 18 分
横須賀線「新川崎」駅 徒歩 22 分
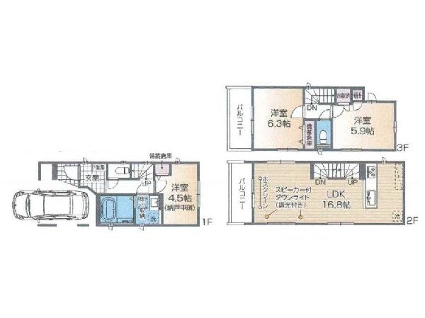
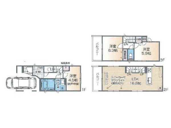
土地面積
50.21㎡
建物面積
110.59㎡
間取り
4LDK
前回情報更新日 2026.05.14 | 次回情報更新予定日 2026.05.28
この物件のココがオススメ!
「矢向」駅 徒歩18分 ルーフバルコニー付き 前面道路7Mで車庫入れ楽々 目の前がコンビニで買物に便利
お気軽にどうぞ!
お気に入りに追加済み
お気軽にどうぞ!
お気に入りに追加済み
この物件の月々のお支払額
ボーナス時(年2回)お支払額
年収に対する返済比率
※会員登録し、詳細情報を記入されますと、全ての物件で自動的に金額が表示され、大変便利です。
※まだ会員登録をされていない方は、下記チェック欄をご記入ください。
※上記計算は物件価格 5,080万円+諸経費 8%込みの金額による結果となります。
※返済金額はあくまでも目安です。
会員登録してローン情報を入力しておくと全ての物件に対してローンシミュレーションを表示できます。
会員未登録のお客様
会員登録をして会員情報にシミュレーション条件が未登録のお客様
マイページから会員登録なしでシミュレーションするお客様
駅
周辺環境:新川崎駅(タワーマンションも建ち並ぶ再開発された駅、横須賀線で新橋まで19分と通勤も便利です。)(1700m)
ショッピングセンター
周辺環境:クロスガーデン川崎(スーパー、薬局、病院、電化製品の購入やラーメン、モスバーガー等のお食事処もあります。)(650m)
スーパー
周辺環境:サミット南加瀬店(サミットストアは「あなたの街のスーパーマーケット。」毎日の食卓を品質と品揃えで応援します。)(600m)
ドラッグストア
周辺環境:ツルハドラッグ小倉店(北日本のドラッグストアチェ―ンで、健康で豊かな暮らしづくりをサポート)(280m)
ホームセンター
周辺環境:島忠ホームズ新川崎店(日用品、ペット用品、家電から建築資材まで何でもそろうホームセンターです。)(800m)
コンビニ
周辺環境:セブンイレブン 小倉3丁目店(セブンミール、お弁当に定評のあるセブンイレブン、コンビニエンスの最大手ですね。)(450m)
幼稚園・保育園
周辺環境:小倉はなかご保育園(川崎市幸区の住宅街の真ん中に位置する、子どもたちと先生の笑顔溢れる保育園です。)(600m)
小学校
周辺環境:小倉小学校(学校教育目標はよく考え進んで学習する子、心豊かな明るい子、責任をもってやり遂げる子、健康でたくましい子)(500m)
中学校
周辺環境:南加瀬中学校(交通量の多い幹線道路を渡ることなく、主に住宅街を通り抜けるため、お子様にとって優しい通学路です。)(1000m)
お気軽にどうぞ!
お気に入りに追加済み
学区
小倉小学校
南加瀬中学校
用途地域
近隣商業
地目
宅地
建ぺい率
80%
容積率
200%
駐車場
有り ビルトイン車庫
接道
南 7.2m 東 4.0m
権利
所有権
私道面積
有 14.64m²
セットバック
無し
建物構造
木造
建物階数
3階
築年月
2026/07
入居日
2026/08
建築確認番号
第25UDI1K建02543号
都市計画
市街化区域
取引態様
仲介
物件番号
A2346
設備
都市ガス、公営水道、公共下水、外壁サイディング、スレート葺、ビルトインガレージ、駐車場1台、閑静な住宅地、平坦地、角地、都市近郊、地盤調査済、南側道路面す、前道6m以上、市街地が近い、スーパーが近い(10分以内)、駅まで平坦、2沿線以上利用可、小学校徒歩10分以内、保育施設・幼稚園5分以内、公園5分以内、コンビニ5分以内、システムキッチン、ガス3口、食器洗い機付き、浄水器、ユニットバス、追い焚き、浴室乾燥機、ウォシュレット、オートバス付き、トイレ2ヶ所、浴室1坪以上、浴室に窓、暖房便座、バルコニー、ルーフバルコニー、屋上、3階建以上、採光3面、南向き、全室2面採光、フローリング、全室フローリング、リビング階段、クローゼット、収納、床下収納、下駄箱、洗面室収納、納戸、シャンプドレッサー付き、フラット35Sに対応、年内入居可、モニタ付きインターフォン、複層ガラス、火災警報器(報知機)、セキュリティ充実、通風良好、陽当り良好、24時間換気システム、建物10年保証
特記事項
景観法:有/宅地造成工事規制区域:有/高度地区:有/準防火地域:有/日影制限:有/高さ最低限度:有/建物面積に車庫面積11.17平米を含む。
備考
「矢向」駅 徒歩18分 ルーフバルコニー付き 前面道路7Mで車庫入れ楽々 目の前がコンビニで買物に便利
お気軽にどうぞ!
お気に入りに追加済み
loading...