横浜市西区境之谷 中古一戸建 3480万円

物件種別

中古一戸建て

価格

3,480万円

所在地

横浜市西区 境之谷

交通

相模鉄道線「西横浜」駅 徒歩 13 分

京浜急行本線「黄金町」駅 徒歩 17 分

土地面積

41.88㎡

建物面積

70.59㎡

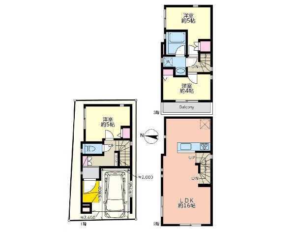
間取り

3LDK

前回情報更新日 2026.01.15 | 次回情報更新予定日 2026.01.29

1 | 19

この物件のココがオススメ!

2021年築の木造3階建 ハウスクリーニング済み キレイな状態でお住まい頂けます 「西横浜駅/黄金町駅」徒歩圏 横浜駅もバス停徒歩2分でバス便快適 お車を大切に保管できるビルトイン車庫

お気軽にどうぞ!

お気に入りに追加済み

所在地マップ

申し訳ありません。
所在地マップは会員限定です。

無料の会員登録(簡単1分)で
すぐに物件をご覧になれます。

無料会員登録はこちら

間取り

お気軽にどうぞ!

お気に入りに追加済み

ローンシミュレーション

頭金・金利の場合

この物件の月々のお支払額

72,469

ボーナス時(年2回)お支払額

150,000

年収に対する返済比率

- %

※会員登録し、詳細情報を記入されますと、全ての物件で自動的に金額が表示され、大変便利です。

※まだ会員登録をされていない方は、下記チェック欄をご記入ください。

※上記計算は物件価格 3,480万円+諸経費 8%込みの金額による結果となります。

※返済金額はあくまでも目安です。

お客様の条件からシミュレーションするには?

会員登録してローン情報を入力しておくと全ての物件に対してローンシミュレーションを表示できます。

周辺環境

野毛山動物園(野毛山公園の中にあり桜の名所としても有名。ライオンやキリンなど、約90種類の動物が飼育されています。)

公園

周辺環境:野毛山動物園(野毛山公園の中にあり桜の名所としても有名。ライオンやキリンなど、約90種類の動物が飼育されています。)(900m)

西横浜駅(相鉄線で横浜駅へ2駅。駅周辺は昔ながらの商店街があり、老舗商店からチェーン店まで多彩な店舗が揃います)

周辺環境:西横浜駅(相鉄線で横浜駅へ2駅。駅周辺は昔ながらの商店街があり、老舗商店からチェーン店まで多彩な店舗が揃います)(1100m)

ローソン 横浜霞ヶ丘店(スイーツが人気のコンビニ。店内厨房で炊いたご飯や出来立て揚げ物を提供する、まちかど厨房取扱店。)

コンビニ

周辺環境:ローソン 横浜霞ヶ丘店(スイーツが人気のコンビニ。店内厨房で炊いたご飯や出来立て揚げ物を提供する、まちかど厨房取扱店。)(500m)

スーパーマルヤマ三春台店(地元の方に愛される小規模サイズのスーパー。食料品から生活雑貨まで取扱いがあり、近くにあると便利です。)

スーパー

周辺環境:スーパーマルヤマ三春台店(地元の方に愛される小規模サイズのスーパー。食料品から生活雑貨まで取扱いがあり、近くにあると便利です。)(400m)

青木小児科医院(小児科医30年の経験のある先生が、隔てのない診療をする小児科・内科。院内処方が便利です。)

病院

周辺環境:青木小児科医院(小児科医30年の経験のある先生が、隔てのない診療をする小児科・内科。院内処方が便利です。)(270m)

あそびの杜保育園(ムーミンの会で一番最初にできた認可保育園。早寝早起き、運動、食事など育ちの土台を大切にしています。)

幼稚園・保育園

周辺環境:あそびの杜保育園(ムーミンの会で一番最初にできた認可保育園。早寝早起き、運動、食事など育ちの土台を大切にしています。)(550m)

藤棚幼稚園(藤棚商店街の近くにあるアットホームな幼稚園。運動会・お遊戯会・作品展などの行事が充実しています。)

幼稚園・保育園

周辺環境:藤棚幼稚園(藤棚商店街の近くにあるアットホームな幼稚園。運動会・お遊戯会・作品展などの行事が充実しています。)(550m)

稲荷台小学校(見晴らしの良い高台にある小学校。学校教育目標は「自分とみんな いいな いいな 稲荷台」です。)

小学校

周辺環境:稲荷台小学校(見晴らしの良い高台にある小学校。学校教育目標は「自分とみんな いいな いいな 稲荷台」です。)(400m)

境之谷公園(高台にある自然豊かな公園。園内には室内アスレチックのこどもログハウスがあり、雨の日も安心して遊べます)

公園

周辺環境:境之谷公園(高台にある自然豊かな公園。園内には室内アスレチックのこどもログハウスがあり、雨の日も安心して遊べます)(260m)

お気軽にどうぞ!

お気に入りに追加済み

詳細情報

この一戸建てを見ている人におすすめの物件

お気軽にどうぞ!

お気に入りに追加済み

loading...