横浜市鶴見区北寺尾7丁目 新築一戸建 4980万円

物件種別

新築一戸建て

価格

4,980万円

所在地

横浜市鶴見区 北寺尾7丁目

交通

横浜線「菊名」駅 徒歩 19 分

東急東横線「綱島」駅 バス停「獅子ケ谷」まで 徒歩 9 分 バス利用 20分

土地面積

89.96㎡

建物面積

106.63㎡

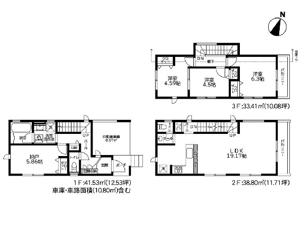
間取り

3LDK

前回情報更新日 2026.03.13 | 次回情報更新予定日 2026.03.27

1 | 9

この物件のココがオススメ!

2路線利用可能「菊名」駅徒歩圏内 吹抜けのあるリビング キッチン・洗面室の入口2ヶ所で動線良好 7.4帖ロフト

お気軽にどうぞ!

お気に入りに追加済み

所在地マップ

申し訳ありません。
所在地マップは会員限定です。

無料の会員登録(簡単1分)で
すぐに物件をご覧になれます。

無料会員登録はこちら

間取り

お気軽にどうぞ!

お気に入りに追加済み

ローンシミュレーション

頭金・金利の場合

この物件の月々のお支払額

114,486

ボーナス時(年2回)お支払額

150,000

年収に対する返済比率

- %

※会員登録し、詳細情報を記入されますと、全ての物件で自動的に金額が表示され、大変便利です。

※まだ会員登録をされていない方は、下記チェック欄をご記入ください。

※上記計算は物件価格 4,980万円+諸経費 8%込みの金額による結果となります。

※返済金額はあくまでも目安です。

お客様の条件からシミュレーションするには?

会員登録してローン情報を入力しておくと全ての物件に対してローンシミュレーションを表示できます。

周辺環境

北寺尾第四公園(斜面を利用した大きな滑り台のある公園。砂場、ブランコもあります。住宅街の中にあり落ち着いた雰囲気です。)

公園

周辺環境:北寺尾第四公園(斜面を利用した大きな滑り台のある公園。砂場、ブランコもあります。住宅街の中にあり落ち着いた雰囲気です。)(140m)

文化堂馬場店(コンパクトな店内にリーズナブルな商品が並ぶ。地元の方に馴染みのスーパー。営業時間は10時~21時。)

スーパー

周辺環境:文化堂馬場店(コンパクトな店内にリーズナブルな商品が並ぶ。地元の方に馴染みのスーパー。営業時間は10時~21時。)(1300m)

セブン-イレブン 横浜北寺尾7丁目店(近くて便利、期待以上の品質を提供するコンビニ。セブンイレブンの商品を最短30分で届ける7NOW取扱店。)

コンビニ

周辺環境:セブン-イレブン 横浜北寺尾7丁目店(近くて便利、期待以上の品質を提供するコンビニ。セブンイレブンの商品を最短30分で届ける7NOW取扱店。)(350m)

宮川医院(循環器内科、小児科、内科のある病院。明るい女性医師が、ちょっとした不安にも親身になって診療する。)

病院

周辺環境:宮川医院(循環器内科、小児科、内科のある病院。明るい女性医師が、ちょっとした不安にも親身になって診療する。)(260m)

ねむの樹北寺尾保育園(遊びを通して丈夫な体や思いやりの心を育て、ひとりひとりの個性を伸ばす定員40~45名の小さな保育園。)

幼稚園・保育園

周辺環境:ねむの樹北寺尾保育園(遊びを通して丈夫な体や思いやりの心を育て、ひとりひとりの個性を伸ばす定員40~45名の小さな保育園。)(350m)

馬場小学校(住宅街にある小学校。体育館が新しく設備が充実している。教育目標は「自らかがやく子 ともにかがやく子」。)

小学校

周辺環境:馬場小学校(住宅街にある小学校。体育館が新しく設備が充実している。教育目標は「自らかがやく子 ともにかがやく子」。)(500m)

クリエイトエス・ディー鶴見北寺尾店(医薬品、化粧品、日用品、ベビー用品はもちろん、野菜、精肉、冷凍食品、酒、たばこも取扱う。駐車場有。)

ドラッグストア

周辺環境:クリエイトエス・ディー鶴見北寺尾店(医薬品、化粧品、日用品、ベビー用品はもちろん、野菜、精肉、冷凍食品、酒、たばこも取扱う。駐車場有。)(650m)

トレッサ横浜(オートモールを中心に専門店が約220店舗入った巨大なショッピングモール。スーパーSANWAがある。)

ショッピングセンター

周辺環境:トレッサ横浜(オートモールを中心に専門店が約220店舗入った巨大なショッピングモール。スーパーSANWAがある。)(1600m)

港北図書館(1階は一般図書、漫画、児童図書室、2階は雑誌、新聞、等。閲覧席は多め、電源のあるパソコン利用席もあります。)

図書館

周辺環境:港北図書館(1階は一般図書、漫画、児童図書室、2階は雑誌、新聞、等。閲覧席は多め、電源のあるパソコン利用席もあります。)(1300m)

お気軽にどうぞ!

お気に入りに追加済み

詳細情報

この一戸建てを見ている人におすすめの物件

お気軽にどうぞ!

お気に入りに追加済み

loading...