物件種別
新築一戸建て
価格
4,780万円
所在地
横浜市西区 境之谷
交通
京浜急行本線「黄金町」駅 徒歩 14 分
相模鉄道線「西横浜」駅 徒歩 17 分
土地面積
56.54㎡
建物面積
97.29㎡
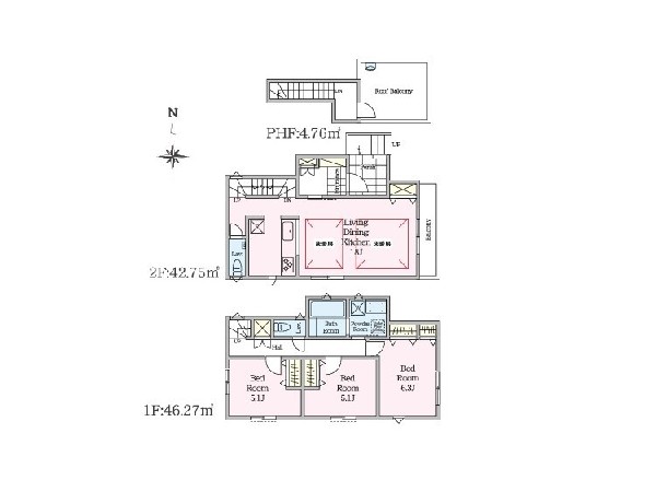
間取り
3LDK
前回情報更新日 2026.05.28 | 次回情報更新予定日 2026.06.11
この物件のココがオススメ!
「黄金町」駅徒歩14分 横浜駅もバス一本でアクセス可! 南向きの2階リビング 家事動線のよいL字型キッチン パントリー付き 洗面室にガス栓設置済み フラット35S対応の省エネルギー住宅
お気軽にどうぞ!
お気に入りに追加済み
お気軽にどうぞ!
お気に入りに追加済み
この物件の月々のお支払額
ボーナス時(年2回)お支払額
年収に対する返済比率
※会員登録し、詳細情報を記入されますと、全ての物件で自動的に金額が表示され、大変便利です。
※まだ会員登録をされていない方は、下記チェック欄をご記入ください。
※上記計算は物件価格 4,780万円+諸経費 8%込みの金額による結果となります。
※返済金額はあくまでも目安です。
会員登録してローン情報を入力しておくと全ての物件に対してローンシミュレーションを表示できます。
会員未登録のお客様
会員登録をして会員情報にシミュレーション条件が未登録のお客様
マイページから会員登録なしでシミュレーションするお客様
公園
周辺環境:境之谷公園(高台にある自然豊かな公園。園内には室内アスレチック「こどもログハウス」があり、雨の日安心して遊べます。)(400m)
周辺の街並み
周辺環境:野毛山動物園(野毛山公園の中にあり桜の名所としても有名。ライオンやキリンなど、約90種類の動物が飼育されています。)(1100m)
駅
周辺環境:西横浜駅(相鉄線で横浜駅へ2駅。駅周辺は昔ながらの商店街があり、老舗商店からチェーン店まで多彩な店舗が揃います)(1300m)
スーパー
周辺環境:スーパーマルヤマ三春台店(地元の方に愛される小規模サイズのスーパー。食料品から生活雑貨まで取扱いがあり、近くにあると便利です。)(110m)
コンビニ
周辺環境:ローソン 横浜霞ヶ丘店(スイーツが人気のコンビニ。店内厨房で炊いたご飯や出来立て揚げ物を提供する、まちかど厨房取扱店です。)(500m)
スーパー
周辺環境:FUJI伊勢町店(鮮度・旬・グレードにこだわった商品を提供。ベーカリーコーナーでは美味しい焼き立てパンを購入できます。)(1300m)
幼稚園・保育園
周辺環境:霞ケ丘幼稚園(あそびや生活の中から「人を思いやる心・ありがとうの心」を身に付けていく、キリスト教の幼稚園です。)(400m)
小学校
周辺環境:稲荷台小学校(見晴らしの良い高台にある小学校。学校教育目標は「自分とみんな いいな いいな 稲荷台」です。)(850m)
病院
周辺環境:青木小児科医院(小児科医30年の経験のある先生が、隔てのない診療をする小児科・内科。院内処方が便利です。)(300m)
お気軽にどうぞ!
お気に入りに追加済み
学区
稲荷台小学校 850m
岩井原中学校 1400m
用途地域
近隣商業
地目
宅地
建ぺい率
80%
容積率
240%
駐車場
有り ビルトイン車庫
接道
南 4.0m
権利
所有権
私道面積
有 2.58m²
セットバック
無し
建物構造
木造
建物階数
3階
築年月
2026/06
入居日
2026/07
建築確認番号
KBI-YKH25-10-3554
都市計画
市街化区域
取引態様
仲介
物件番号
P1135-B
設備
都市ガス、公営水道、公共下水、省エネルギー対策、シックハウス対策、ビルトインガレージ、都市近郊、地盤調査済、南側道路面す、市街地が近い、周辺交通量少なめ、スーパーが近い(10分以内)、2沿線以上利用可、保育施設・幼稚園5分以内、公園5分以内、対面キッチン、パントリー、都市ガス、システムキッチン、対面キッチン、L型キッチン、食器洗い機付き、浄水器、パントリー(食器・食品の収納庫)、ユニットバス、追い焚き、浴室乾燥機、ウォシュレット、オートバス付き、トイレ2ヶ所、浴室1坪以上、浴室に窓、暖房便座、浴室暖房、バルコニー、南面バルコニー、3階建以上、LDK18畳以上、省エネ給湯器、採光3面、南向き、全室2面採光、フローリング、リビング階段、クローゼット、収納、床下収納、下駄箱、全居室収納、洗面室収納、シャンプドレッサー付き、フラット35Sに対応、年内入居可、モニタ付きインターフォン、複層ガラス、火災警報器(報知機)、通風良好、陽当り良好、24時間換気システム、建物10年保証
特記事項
不整形地:有/宅地造成工事規制区域:有/急傾斜地崩壊危険区域:有/準防火地域:有/緑化地域、横浜市建築基準条例第3条による制限有。
備考
「黄金町」駅徒歩14分 横浜駅もバス一本でアクセス可! 南向きの2階リビング 家事動線のよいL字型キッチン パントリー付き 洗面室にガス栓設置済み フラット35S対応の省エネルギー住宅
お気軽にどうぞ!
お気に入りに追加済み
loading...