物件種別
中古一戸建て
価格
5,390万円
所在地
川崎市宮前区 犬蔵1丁目
交通
田園都市線「宮前平」駅 バス停「菅生車庫」まで 徒歩 4 分 バス利用 9分
田園都市線「たまプラーザ」駅 バス停「くすのき公園」まで 徒歩 11 分 バス利用 9分
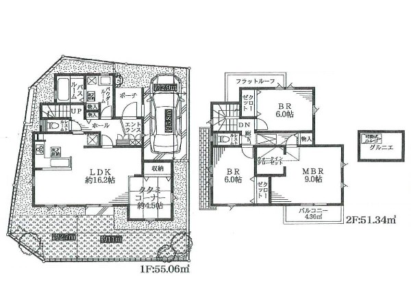
土地面積
106.19㎡
建物面積
143.55㎡
間取り
4LDK
前回情報更新日 2025.12.12 | 次回情報更新予定日 2025.12.26
この物件のココがオススメ!
「宮前平」駅「たまプラーザ」駅バス9分 ウッドデッキやロフト、離れのような和室のある2階建て4LDK
お気軽にどうぞ!
お気に入りに追加済み
お気軽にどうぞ!
お気に入りに追加済み
この物件の月々のお支払額
ボーナス時(年2回)お支払額
年収に対する返済比率
※会員登録し、詳細情報を記入されますと、全ての物件で自動的に金額が表示され、大変便利です。
※まだ会員登録をされていない方は、下記チェック欄をご記入ください。
※上記計算は物件価格 5,390万円+諸経費 8%込みの金額による結果となります。
※返済金額はあくまでも目安です。
会員登録してローン情報を入力しておくと全ての物件に対してローンシミュレーションを表示できます。
会員未登録のお客様
会員登録をして会員情報にシミュレーション条件が未登録のお客様
マイページから会員登録なしでシミュレーションするお客様
幼稚園・保育園
周辺環境:健爽学園ゆりかご幼稚園 (保育園と幼稚園との機構をもっている幼保連携型認定こども園です。)(220m)
その他環境写真
周辺環境:宮前スポーツセンター (大小体育室やトレーニング室、ボルダリングなどを利用できます。)(500m)
中学校
周辺環境:犬蔵中学校 (学校教育目標は「生命・いのちを尊重し,生きる力を育む。」)(550m)
小学校
周辺環境:犬蔵小学校 (緑の丘に包まれた自然豊かな環境の中で、44年の歴史を刻んできた犬蔵小学校。現在、1100人を超える児童が、のびのびと学校生活を送っています。)(600m)
スーパー
周辺環境:マルエツ川崎宮前店 (午前10時~午後11時まで営業。駐車場も3時間無料なので、車でのお買い物に便利。)(700m)
公園
周辺環境:犬蔵さくらの丘公園(見晴らしの良い景色が楽しめて、とても気持ちのいい風が吹いています。さくらの季節には、いろいろな桜の花が楽しめるようです。)(850m)
お気軽にどうぞ!
お気に入りに追加済み
学区
犬蔵小学校
犬蔵中学校
用途地域
第一種低層住居専用
地目
宅地
建ぺい率
50%
容積率
100%
駐車場
有り 地下車庫
接道
北西 4.6m
権利
所有権
私道面積
無し
セットバック
無し
建物構造
木造
建物階数
2階
築年月
2014/11
入居日
相談
都市計画
市街化区域
取引態様
仲介
物件番号
A1603
設備
都市ガス、公営水道、公共下水、スレート葺、駐車場1台、緑豊かな住宅地、閑静な住宅地、都市近郊、市街地が近い、周辺交通量少なめ、スーパーが近い(10分以内)、小学校徒歩10分以内、中学校徒歩10分以内、保育施設・幼稚園5分以内、公園5分以内、都市ガス、システムキッチン、ガス3口、食器洗い機付き、浄水器、ユニットバス、追い焚き、浴室乾燥機、ウォシュレット、トイレ2ヶ所、浴室に窓、暖房便座、浴室暖房、バルコニー、ウッドデッキ、南面バルコニー、内外装リフォーム、2階建、ロフト、LDK15畳以上、全居室6畳以上、和室、照明器具付き、採光3面、南向き、フローリング、リビング階段、クローゼット、押し入れ、収納、下駄箱、全居室収納、シャンプドレッサー付き、年内入居可、通風良好、陽当り良好
特記事項
壁面後退:有/景観法:有/宅地造成工事規制区域:有/日影制限:有/敷地面積最低限度:有/高さ限度:有/建築基準法22条による区域。 /内装リフォーム…2025年09月(キッチン、浴室、トイレ、洗面所、壁、床、建具、照明器具など) 外装リフォーム…2025年09月(外壁、屋根)
備考
「宮前平」駅「たまプラーザ」駅バス9分 ウッドデッキやロフト、離れのような和室のある2階建て4LDK
お気軽にどうぞ!
お気に入りに追加済み
loading...