物件種別
中古一戸建て
価格
4,780万円
所在地
川崎市麻生区 千代ケ丘8丁目
交通
「」駅
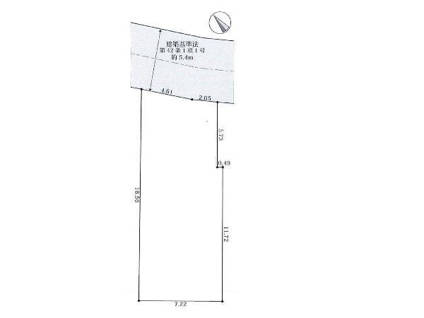
土地面積
125.09㎡
建物面積
93.98㎡
間取り
2SLDK
前回情報更新日 2026.01.09 | 次回情報更新予定日 2026.01.23
この物件のココがオススメ!
「新百合ヶ丘」駅利用 太陽光パネル設置、オール電化のエコロジー住宅 リビングからの眺望が良好です
お気軽にどうぞ!
お気に入りに追加済み
お気軽にどうぞ!
お気に入りに追加済み
この物件の月々のお支払額
ボーナス時(年2回)お支払額
年収に対する返済比率
※会員登録し、詳細情報を記入されますと、全ての物件で自動的に金額が表示され、大変便利です。
※まだ会員登録をされていない方は、下記チェック欄をご記入ください。
※上記計算は物件価格 4,780万円+諸経費 8%込みの金額による結果となります。
※返済金額はあくまでも目安です。
会員登録してローン情報を入力しておくと全ての物件に対してローンシミュレーションを表示できます。
会員未登録のお客様
会員登録をして会員情報にシミュレーション条件が未登録のお客様
マイページから会員登録なしでシミュレーションするお客様
駅
周辺環境:新百合ヶ丘駅(ショッピングモールや映画館のある駅ビルが立ち並ぶ人気の駅です。区役所等の公共機関も多数集まっており便利です。)(1900m)
小学校
周辺環境:千代ヶ丘小学校(昭和50年創立の小学校。少人数の学校ですが、熱意ある先生が多く、生徒に活気があると評判。富士山が綺麗に望めることでも有名。)(300m)
中学校
周辺環境:金程中学校(昭和61年創立で生徒数約410名。吹奏楽部、陸上部、水泳部などが、県や関東大会に出場する強豪校。)(1000m)
公園
周辺環境:千代ヶ丘第2公園(住宅街らしく近隣には公園が多数ありますのでお子様とって嬉しい住環境です。その日の気分でどこへ行こうか決める楽しみもあるはず。)(550m)
スーパー
周辺環境:ユーコープ千代ヶ丘店(こだわりの食材や調味料、お惣菜などを取り扱っており、お料理の幅が広がりそうです。新しいお料理にチャレンジしてみたくなりそうです。)(1100m)
幼稚園・保育園
周辺環境:ちよがおか幼稚園(送り迎えに無理のない距離感にある幼稚園です。豊かな自然に囲まれ、園舎・園庭から子供たちの元気な声が聞こえてきます。お子様の成長が楽しみです。)(800m)
お気軽にどうぞ!
お気に入りに追加済み
学区
千代ヶ丘小学校
金程中学校
用途地域
第一種低層住居専用
地目
宅地
建ぺい率
40%
容積率
80%
駐車場
有り カースペース
接道
北東 5.4m
権利
所有権
私道面積
無し
セットバック
無し
建物構造
木造
建物階数
2階
築年月
2019/09
入居日
相談
都市計画
市街化区域
取引態様
仲介
物件番号
A1900
設備
公営水道、公共下水、吹き抜け、省エネルギー対策、スレート葺、駐車場2台以上、高台に立地、閑静な住宅地、都市近郊、地盤調査済、市街地が近い、周辺交通量少なめ、始発駅、小学校徒歩10分以内、公園5分以内、コンビニ5分以内、太陽光発電システム、対面キッチン、眺望良好、システムキッチン、対面キッチン、食器洗い機付き、浄水器、IHクッキングヒーター、コンロ口数三口、ユニットバス、追い焚き、浴室乾燥機、ウォシュレット、トイレ2ヶ所、浴室に窓、暖房便座、バルコニー、2階建、LDK18畳以上、太陽光発電システム、採光3面、南西向き、オール電化、クローゼット、収納、床下収納、下駄箱、全居室収納、洗面室収納、シャンプドレッサー付き、年内入居可、モニタ付きインターフォン、複層ガラス、火災警報器(報知機)、陽当り良好、24時間換気システム
特記事項
壁面後退:有/景観法:有/宅地造成工事規制区域:有/高度地区:有/日影制限:有/敷地面積最低限度:有/高さ限度:有/建築基準法第22条による区域 駐車は車種により2台可 間取りSは納戸。 /内装リフォーム…2025年12月(トイレ、壁、シーリングファン取付)
備考
「新百合ヶ丘」駅利用 太陽光パネル設置、オール電化のエコロジー住宅 リビングからの眺望が良好です
お気軽にどうぞ!
お気に入りに追加済み
loading...